1. Home
  2. Search Listings
  3. 819 Sky Pine Way #g3 Greenacres, FL - 33415
  • MLS® #: RX-11149709
  • 819 Sky Pine Way #g3
  • Greenacres, FL 33415
  • $184,900
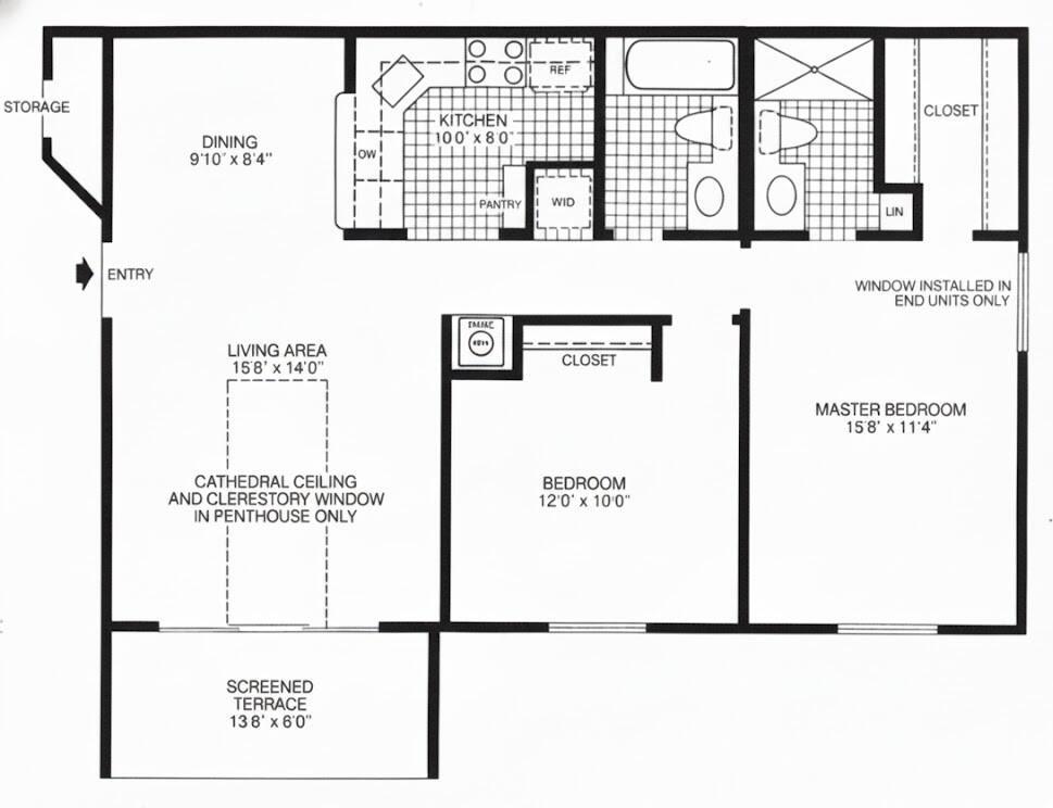
  • 2 Beds, 2 Bath, 1,064 SqFt
  • Residential

Welcome to this excellent condition and inviting 55+ apartment offering comfort and convenience. Features 2 bedrooms and 2 full baths, including a remodeled primary bath and large walk-in closet. Enjoy an open, airy feel with a cathedral-style ceiling and skylight, filling the home with natural light. Step out onto the balcony with a beautiful view, perfect for relaxing mornings or evenings.In-unit laundry with commercial-grade machine. Located in a nice, quiet community with pool, tennis, pickleball, and shuffleboard. Cable, water, and waste included. Immediate rental allowed. Extra storage closet next to unit entrance. Spacious walkable attic adapted for storage. Ideal for those seeking a peaceful, well-kept 55+ community with great amenities.

View Virtual Tour

Essential Information

  • MLS® #RX-11149709
  • Price$184,900
  • Bedrooms2
  • Bathrooms2.00
  • Full Baths2
  • Square Footage1,064
  • Year Built1987
  • TypeResidential
  • Sub-TypeCondo or Coop
  • StatusActive

Community Information

  • Address819 Sky Pine Way #g3
  • Area5720
  • CityGreenacres
  • CountyPalm Beach
  • StateFL
  • Zip Code33415

Subdivision

PINE RIDGE NORTH VILLAGE IV CONDO

Amenities

  • ParkingAssigned, Vehicle Restrictions
  • WaterfrontNone

Amenities

Pickleball, Pool, Shuffleboard, Tennis

Utilities

Cable, 3-Phase Electric, Public Sewer, Public Water

Interior

  • HeatingCentral
  • CoolingCeiling Fan, Central
  • # of Stories3
  • Stories3.00

Interior Features

Ctdrl/Vault Ceilings, Pantry, Sky Light(s), Walk-in Closet

Appliances

Dishwasher, Dryer, Microwave, Range - Electric, Refrigerator, Washer, Water Heater - Elec

Exterior

  • RoofComp Shingle
  • ConstructionCBS

Additional Information

  • Date ListedDecember 25th, 2025
  • Days on Website52
  • ZoningRM-2
  • HOA Fees416
  • HOA Fees Freq.Monthly
  • Office: Realty Hub

Property Location

Please provide a valid email address.

819 Sky Pine Way #g3 on www.jupiterabacoahomes.us

Offered at the current list price of $184,900, this home for sale at 819 Sky Pine Way #g3 features 2 bedrooms and 2 bathrooms. This real estate listing is located in PINE RIDGE NORTH VILLAGE IV CONDO of Greenacres, FL 33415 and is approximately 1,064 square feet. 819 Sky Pine Way #g3 is listed under the MLS ID of RX-11149709 and has been available through www.jupiterabacoahomes.us for the Greenacres real estate market for 52 days.

Similar Listings to 819 Sky Pine Way #g3

Photo of Listing #RX-11160057
  • MLS® #: RX-11160057
  • 812 Sky Pine Way #a3
  • Greenacres, FL 33415
  • $187,000
  • 2 Bed, 2 Bath, 1,064 SqFt
  • Residential
Add as Favorite
Photo of Listing #RX-11106886
  • MLS® #: RX-11106886
  • 811 Sky Pine Way #a2
  • Greenacres, FL 33415
  • $175,000
  • 2 Bed, 2 Bath, 1,064 SqFt
  • Residential
Add as Favorite
Photo of Listing #RX-11130785
  • MLS® #: RX-11130785
  • 811 Sky Pine Way #c-3
  • Greenacres, FL 33415
  • $194,950
  • 2 Bed, 2 Bath, 1,064 SqFt
  • Residential
Add as Favorite
Photo of Listing #RX-11131880
  • MLS® #: RX-11131880
  • 815 Sky Pine Way #b1
  • Greenacres, FL 33415
  • $200,000
  • 2 Bed, 2 Bath, 1,111 SqFt
  • Residential
Add as Favorite

All listings featuring the BMLS logo are provided by Beaches MLS Inc. Copyright 2026 Beaches MLS. This information is not verified for authenticity or accuracy and is not guaranteed.
© 2026 Beaches Multiple Listing Service, Inc. All rights reserved.

Listing information last updated on February 15th, 2026 at 10:45pm CST.