1. Home
  2. Search Listings
  3. 15441 Strathearn Dr Delray Beach, FL - 33446
  • MLS® #: RX-11137153
  • 15441 Strathearn Dr
  • Delray Beach, FL 33446
  • $995,000
  • 3 Beds, 3 Bath, 2,042 SqFt
  • Residential

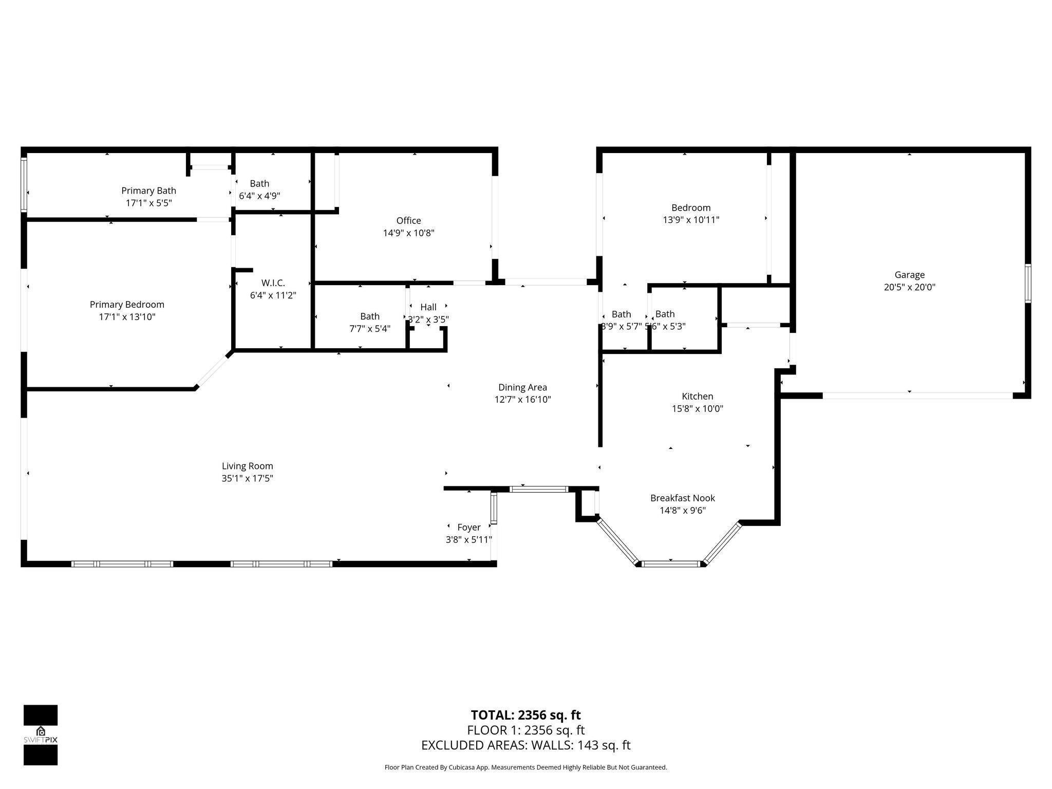
Beautifully maintained 3-bedroom, 3-bath home in the award-winning Country Club. Features include impact sliders and windows, updated bathrooms with modern vanities, fixtures, and a large spa tub in the main suite. Bright open layout with atrium views, formal dining, and laundry area off the kitchen. Enjoy resort-style amenities including championship golf, state-of-the-art tennis, and a pickleball center.,fitness, dining, and social programs. This beautifully maintained single-family home offers 2,042 sq. ft. under air with an attached two-car garage. The home's south-facing screened patio overlooks the 16th hole of the Victory Golf Course, providing a peaceful and private settingGleneagles Country Club is a private, residential country club community with 1,082 homes and condominiums surrounding world-class social and sports amenities, including two 18-hole championship golf courses, 19 Har-Tru night-lit courts, 8 Pickleball courts, and an over 90,000 square foot clubhouse with 3 restaurants and 2 lounges. The club boasts a new, two-story, 15,000-sq. ft. The Healthy Lifestyle Center, which features a state-of-the-art fitness center, spa, physical therapy services, and a resort-style pool complex, was recently ranked #13 nationally by Club and Resort Business in its Top Ranked Fitness Centers. State-of-the-Art Tennis & Pickleball Center  Once a training ground for legends such as Steffi Graf and Ivan Lendl, Gleneagles continues its legacy of racquet excellence with 19 Har-Tru (green clay) courts and 8 individually fenced pickleball courts. The complex features a stadium court for exhibitions and special events, plus professional pickleball and golf pro shops offering apparel and equipment for all skill levels. Full-Service Fitness & Wellness Center  A newly expanded facility with state-of-the-art equipment, private trainers, physical therapy, Pilates, and seasonal yoga classes. The spa and wellness programs rival top resorts, supporting health, balance, and vitality. Vibrant Social Lifestyle  Guided by a dedicated Director of Social Events, the club curates a full calendar of speakers, performances, themed dinners, and excursions to regional shows and cultural events  creating a lively, connected atmosphere both on and off campus. Culinary Excellence & Community  Gleneagles is home to a highly rated executive chef leading multiple dining venues offering fine and casual options. Members consistently describe the community as warm, welcoming, and friendly, reflecting the spirit of genuine camaraderie that defines life at Gleneagles. This beautifully maintained single-family home offers three bedrooms and three full baths, totaling 2,042 sq. ft. under air, with an attached 2-car garage. The home's south-facing screened patio overlooks the 16th hole of the Victory Golf Course, providing a peaceful and private setting in one of Delray Beach's most desirable country club communities. Construction & Exterior Frame construction with stucco exterior finish Wood truss roof structure with concrete tile roof (2009) Impact-resistant hurricane windows and shutters Lot size: 5,400 sq. ft. Screened patio with vaulted ceiling, locking door, and electric awning Freshly painted garage walls, ceiling, and floor (July 2025) Electric garage door opener with exterior keypad and dual interior control panels Features Cathedral and vaulted ceilings Foyer and atrium Built-in shelving and storage niches Laundry tub in the garage Central vacuum system Ceiling fans (5) Pull-down attic stairs in the garage Smoke detectors and a hard-wired security system Master Bedroom: (dual sinks, separate shower & tub, upgraded vanity and mirror, custom walk-in closet) Flooring: Bedrooms: Carpet Bathrooms: Tile Main areas: Luxury vinyl plank (wood style) Kitchen & Appliances Upgraded kitchen cabinets and countertops Range (electric) Double electric oven Dishwasher Refrigerator with ice maker Microwave Washer & dryer Garage refrigerator/freezer (garage-rated) Electric water heater (replaced June 2022) New central A/C and heating system (June 2025)  transferable warranty + one-year maintenance plan Outdoor Living Screened and vaulted patio Remote-controlled electric awning South-facing exposure overlooking the golf course Recent Upgrades Summary Feature | Year | Notes Roof | 2009 | Concrete tile A/C | 2025 | Warranty transferable Water Heater | 2022 | Electric Master Bath | Recent | New vanity, mirror, custom closet Kitchen | Recent | Upgraded cabinets & counters Garage Paint | 2025 | Floor, walls, ceiling Windows |  | Impact-rated + shutters Bathrooms | Recent | New sinks & toilets Additional Highlights Main Bedroom: Recently updated, with a new toilet, cabinets, sinks, a mirror, and a glass shower stall door. Guest Bathroom: Updated with a new cabinet and sink Laundry: Laundry tub in garage with an interior water spigot. Layout: atrium layout connects the two non-main bedrooms and the dining room. Windows: Newer impact sliders in the living room lead to a porch surrounding the atrium. The only non-impact window is the stained glass in the main bathroom. The house was freshly painted Oct 2025. The seller paid extra to have the gutters and downspouts painted as well. The new buyer would be eligible for painting again in five years. Community Overview Fairway homes provide premium golf proximity and substantial lifestyle value within the 1,082-unit community. - Mediterranean architecture complements 404 acres of fairways, lakes, and greenbelts. - Fairways HOA is currently $785 per quarter. The fee includes lawn care, sprinkler head repairs, driveway and sidewalk cleaning, and roof cleaning. All else is addressed via the Club. In addition to the main clubhouse, seven satellite clubhouses are conveniently located throughout the community, each with heated pools, spas, libraries, billiard rooms, card rooms, and party spaces. Security is provided 24/7, offering residents a relaxing, resort-style lifestyle within a private, gated country club environment. Gleneagles Country Club is located in the heart of Delray Beach, with convenient access to restaurants, shopping, museums, beautiful beaches, and the vibrant downtown area. Atlantic Avenue and Pineapple Grove offer some of the best dining, shopping, art, and entertainment in South Florida. Palm Beach International Airport and Fort Lauderdale-Hollywood International Airport are both within 30 minutes of each other. The nearest beach is located approximately seven miles east of the club. Delray Beach has been named "Best of the Road - Most Fun Small Town in America" by Rand McNally & USA Today.

View Virtual Tour

Essential Information

  • MLS® #RX-11137153
  • Price$995,000
  • Bedrooms3
  • Bathrooms3.00
  • Full Baths3
  • Square Footage2,042
  • Year Built1989
  • TypeResidential
  • Sub-TypeSingle Family Detached
  • StyleRanch
  • StatusActive

Community Information

  • Address15441 Strathearn Dr
  • Area4640
  • SubdivisionGLENEAGLES 9
  • CityDelray Beach
  • CountyPalm Beach
  • StateFL
  • Zip Code33446

Amenities

  • # of Garages2
  • ViewGarden, Golf
  • WaterfrontNone

Amenities

Billiards, Cafe/Restaurant, Clubhouse, Community Room, Exercise Room, Golf Course, Library, Manager on Site, Pickleball, Pool, Putting Green, Sauna, Sidewalks, Street Lights, Tennis

Utilities

Cable, 3-Phase Electric, Public Sewer, Public Water, Underground, Water Available

Parking

2+ Spaces, Drive - Decorative, Garage - Attached, Vehicle Restrictions

Interior

  • HeatingCentral Individual, Electric
  • # of Stories1
  • Stories1.00

Interior Features

Built-in Shelves, Ctdrl/Vault Ceilings, Entry Lvl Lvng Area, Foyer, Laundry Tub, Pull Down Stairs, Split Bedroom, Walk-in Closet

Appliances

Auto Garage Open, Central Vacuum, Cooktop, Dishwasher, Disposal, Dryer, Ice Maker, Microwave, Range - Electric, Refrigerator, Smoke Detector, Wall Oven, Washer, Washer/Dryer Hookup, Water Heater - Elec

Cooling

Central Individual, Paddle Fans, Reverse Cycle

Exterior

  • RoofS-Tile
  • ConstructionFrame, Frame/Stucco

Exterior Features

Auto Sprinkler, Awnings, Screened Patio

Lot Description

Golf Front, Interior Lot, Private Road, Sidewalks, West of US-1, Zero Lot

Windows

Blinds, Impact Glass, Plantation Shutters, Sliding

School Information

  • ElementaryOrchard View Elementary School
  • MiddleCarver Community Middle School

High

Spanish River Community High School

Additional Information

  • Date ListedNovember 1st, 2025
  • Days on Website98
  • ZoningRTS
  • HOA Fees261
  • HOA Fees Freq.Monthly
  • Office: Keller Williams Realty Services

Property Location

Please provide a valid email address.

15441 Strathearn Dr on www.jupiterabacoahomes.us

Offered at the current list price of $995,000, this home for sale at 15441 Strathearn Dr features 3 bedrooms and 3 bathrooms. This real estate listing is located in GLENEAGLES 9 of Delray Beach, FL 33446 and is approximately 2,042 square feet. 15441 Strathearn Dr is listed under the MLS ID of RX-11137153 and has been available through www.jupiterabacoahomes.us for the Delray Beach real estate market for 98 days.

Similar Listings to 15441 Strathearn Dr

Photo of Listing #RX-11120260
  • MLS® #: RX-11120260
  • 7897 Monarch Ct
  • Delray Beach, FL 33446
  • $929,800
  • 4 Bed, 3 Bath, 2,871 SqFt
  • Residential
Add as Favorite
Photo of Listing #RX-11131690
  • MLS® #: RX-11131690
  • 8137 Ferentino Pass
  • Delray Beach, FL 33446
  • $925,000
  • 4 Bed, 3 Bath, 2,555 SqFt
  • Residential
Add as Favorite
Photo of Listing #RX-11149615
  • MLS® #: RX-11149615
  • N/A
  • Delray Beach, FL 33446
  • $989,000
  • 4 Bed, 3 Bath, 2,157 SqFt
  • Residential
Add as Favorite
Photo of Listing #RX-11153776
  • MLS® #: RX-11153776
  • 7518 Carmela Way
  • Delray Beach, FL 33446
  • $1,049,000
  • 3 Bed, 3 Bath, 2,731 SqFt
  • Residential
Add as Favorite

All listings featuring the BMLS logo are provided by Beaches MLS Inc. Copyright 2026 Beaches MLS. This information is not verified for authenticity or accuracy and is not guaranteed.
© 2026 Beaches Multiple Listing Service, Inc. All rights reserved.

Listing information last updated on February 7th, 2026 at 10:45pm CST.