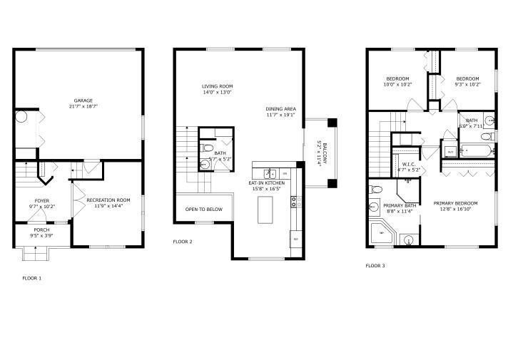
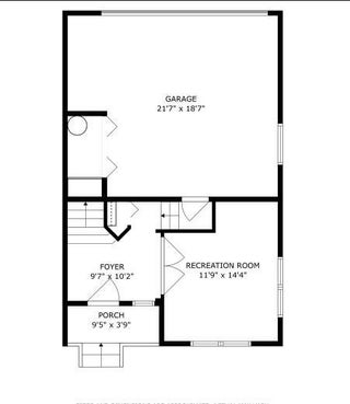
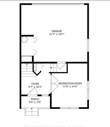
Welcome to Parkside Square, a hidden gem in Boynton Beach. This beautifully maintained 3-story end-unit townhome offers 3 bedrooms plus a den, 2.5 baths, and a 2-car garage with over 1,800 sq. ft. of bright living space. Enjoy an open-concept second floor with a spacious living and dining area, island kitchen with wood cabinetry, stainless steel smart appliances, and a covered balcony with tranquil views. The primary suite features dual vanities, a soaking tub, separate shower, and walk-in closet. Updates include new AC (2024), washer/dryer (2024), hurricane shutters, updated bath, epoxy garage floor, garage mini-split, fresh paint, and new lighting. Low HOA with pool, gym, pickleball, basketball and playground. Close to shopping, dining, I-95, and beach.
View Virtual TourClubhouse, Exercise Room, Lobby, Pickleball, Picnic Area, Playground, Pool
Cable, 3-Phase Electric, Public Sewer
2+ Spaces, Covered, Garage - Attached, Street
Bar, Closet Cabinets, Cook Island, Laundry Tub, Upstairs Living Area, Walk-in Closet, Second/Third Floor Concrete
Auto Garage Open, Dishwasher, Dryer, Freezer, Microwave, Refrigerator, Washer
Freedom Shores Elementary School
Congress Community Middle School
 
		 
		 
		 
		 All listings featuring the BMLS logo are provided by Beaches MLS Inc. Copyright 2025 Beaches MLS. This information is not verified for authenticity or accuracy and is not guaranteed.
All listings featuring the BMLS logo are provided by Beaches MLS Inc. Copyright 2025 Beaches MLS. This information is not verified for authenticity or accuracy and is not guaranteed.
© 2025 Beaches Multiple Listing Service, Inc. All rights reserved. 
Listing information last updated on October 30th, 2025 at 7:45pm CDT.