1. Home
  2. Search Listings
  3. 514 Ne 3rd Av Delray Beach, FL - 33444
  • MLS® #: RX-11133859
  • 514 Ne 3rd Av
  • Delray Beach, FL 33444
  • $2,200,000
  • 6 Beds, 7 Bath, 4,941 SqFt
  • Residential

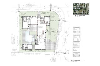
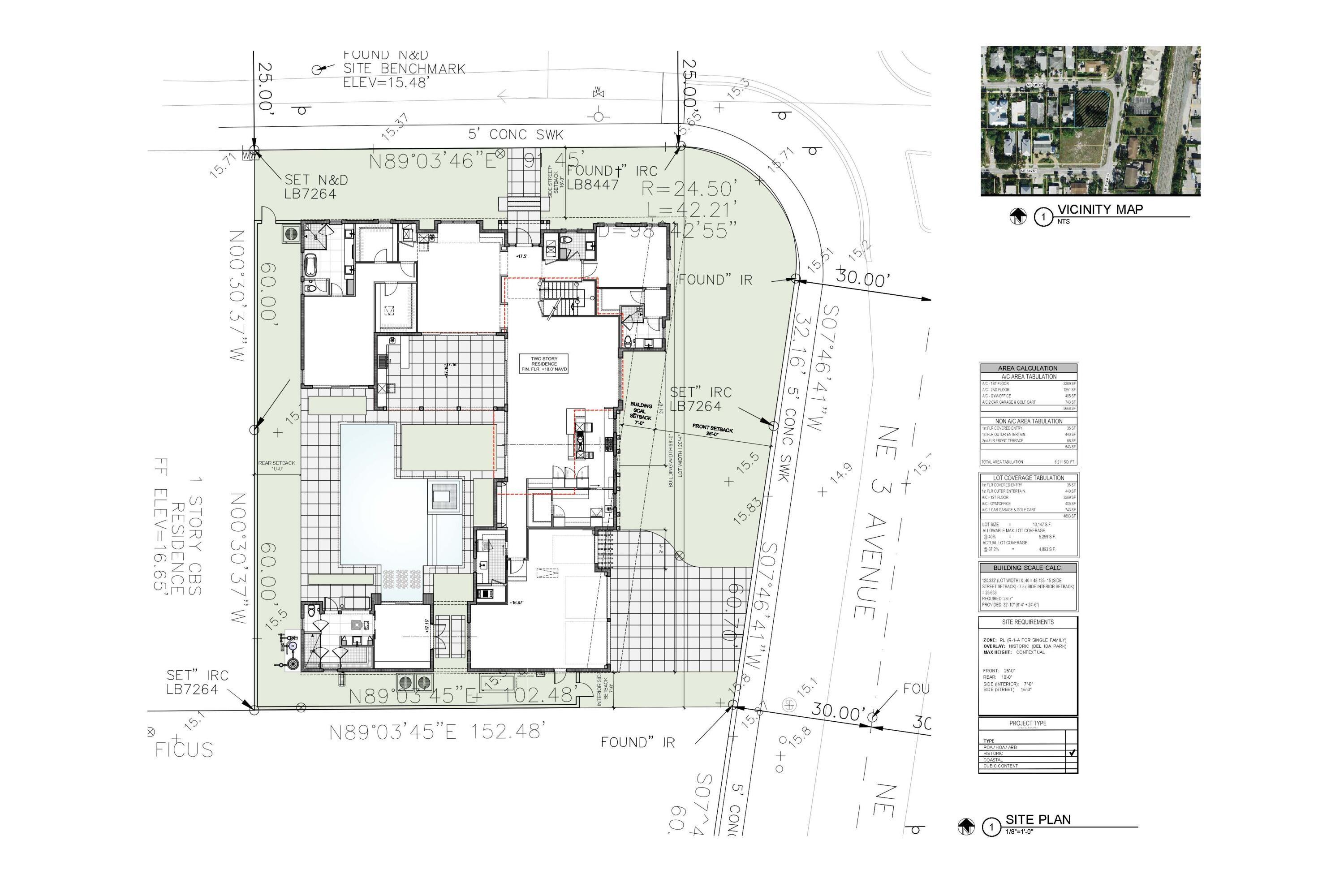
A rare build-ready luxury home opportunity in the heart of Downtown Delray Beach, just four blocks from Atlantic Avenue and less than a mile to the beach. This offering includes a prime vacant corner lot with architectural plans available, allowing buyers to skip years of design, planning, and entitlement work if desired, while still retaining the flexibility to pursue a fully custom design. Fully designed plans by award-winning Randall Stofft Architects, envision a two-story coastal-transitional estate totaling 6,217 SF (4,941 SF under air) with six bedrooms, six-and-a-half baths, a wellness suite, club/flex room, office or gym, and a resort-style courtyard pool. Ideal for a builder or an end user wanting a premier location with architectural pedigree and immediate build potential.Set on a 13,165 ± SF corner lot within the Del Ida Park overlay, this property is surrounded by newly built and planned multimillion-dollar residences, including two luxury homes slated for the adjacent parcelsanchoring a block that is rapidly becoming one of East Delray's most desirable residential pockets. The thoughtfully designed layout offers a sophisticated luxury floor plan that can still be customized to suit a buyer's vision, allowing flexibility while preserving the architectural intent. Enjoy the ability to walk or golf-cart to Atlantic Avenue's cafés, boutiques, dining, and nightlife, while living on a quiet residential street minutes from the sand. This is a rare opportunity to secure a prime downtown Delray location paired with luxury plans, offering a streamlined path to creating a signature coastal residence without the delays typically associated with new construction planning and approvals. The shown architectural plans are included with the sale as an added value and are not required to be used, providing flexibility for buyers who wish to modify the existing design or pursue a fully custom home, subject to applicable approvals and buyer due diligence. The information published and provided, including but not limited to prices, measurements, square footages, lot sizes, features, finishes, and calculations, is subject to errors, omissions, or changes without notice. All information should be independently verified, and buyers are encouraged to perform their own due diligence.

View Virtual Tour

Essential Information

  • MLS® #RX-11133859
  • Price$2,200,000
  • Bedrooms6
  • Bathrooms7.00
  • Full Baths6
  • Half Baths1
  • Square Footage4,941
  • Year Built2026
  • TypeResidential
  • Sub-TypeSingle Family Detached
  • StatusActive

Community Information

  • Address514 Ne 3rd Av
  • Area4240
  • SubdivisionDel Ida Park IN
  • CityDelray Beach
  • CountyPalm Beach
  • StateFL
  • Zip Code33444

Amenities

  • AmenitiesSidewalks
  • # of Garages3
  • WaterfrontNone
  • Has PoolYes

Utilities

3-Phase Electric, Gas Natural, Public Sewer, Public Water

Interior

  • AppliancesGenerator Whle House
  • HeatingCentral, Electric
  • CoolingCentral, Electric
  • # of Stories2
  • Stories2.00

Interior Features

Bar, Built-in Shelves, Entry Lvl Lvng Area, Cook Island, None, Walk-in Closet

Exterior

  • ConstructionCBS

Additional Information

  • Date ListedOctober 20th, 2025
  • Days on Website109
  • ZoningRL
  • Office: Posh Properties

Property Location

Please provide a valid email address.

514 Ne 3rd Av on www.jupiterabacoahomes.us

Offered at the current list price of $2,200,000, this home for sale at 514 Ne 3rd Av features 6 bedrooms and 7 bathrooms. This real estate listing is located in Del Ida Park IN of Delray Beach, FL 33444 and is approximately 4,941 square feet. 514 Ne 3rd Av is listed under the MLS ID of RX-11133859 and has been available through www.jupiterabacoahomes.us for the Delray Beach real estate market for 109 days.

Similar Listings to 514 Ne 3rd Av

Photo of Listing #RX-11105967
  • MLS® #: RX-11105967
  • 322 Nw 16th St
  • Delray Beach, FL 33444
  • $2,399,000
  • 4 Bed, 5 Bath, 2,550 SqFt
  • Residential
Add as Favorite
Photo of Listing #RX-11135658
  • MLS® #: RX-11135658
  • 213 Kings Lynn
  • Delray Beach, FL 33444
  • $2,175,000
  • 4 Bed, 4 Bath, 2,585 SqFt
  • Residential
Add as Favorite
Photo of Listing #RX-11006913
  • MLS® #: RX-11006913
  • 16383 Pantheon Pass
  • Delray Beach, FL 33446
  • $1,999,000
  • 5 Bed, 6 Bath, 4,783 SqFt
  • Residential
Add as Favorite
Photo of Listing #RX-11081945
  • MLS® #: RX-11081945
  • 42 Palm Sq
  • Delray Beach, FL 33483
  • $1,899,000
  • 3 Bed, 3 Bath, 1,455 SqFt
  • Residential
Add as Favorite

All listings featuring the BMLS logo are provided by Beaches MLS Inc. Copyright 2026 Beaches MLS. This information is not verified for authenticity or accuracy and is not guaranteed.
© 2026 Beaches Multiple Listing Service, Inc. All rights reserved.

Listing information last updated on February 6th, 2026 at 1:16pm CST.