1. Home
  2. Search Listings
  3. 101 Se Martin Luther King Jr Blvd Stuart, FL - 34994
  • MLS® #: RX-11108105
  • 101 Se Martin Luther King Jr Blvd
  • Stuart, FL 34994
  • $1,299,000
  • 2,184 SqFt, 0.15 Acres
  • Commercial

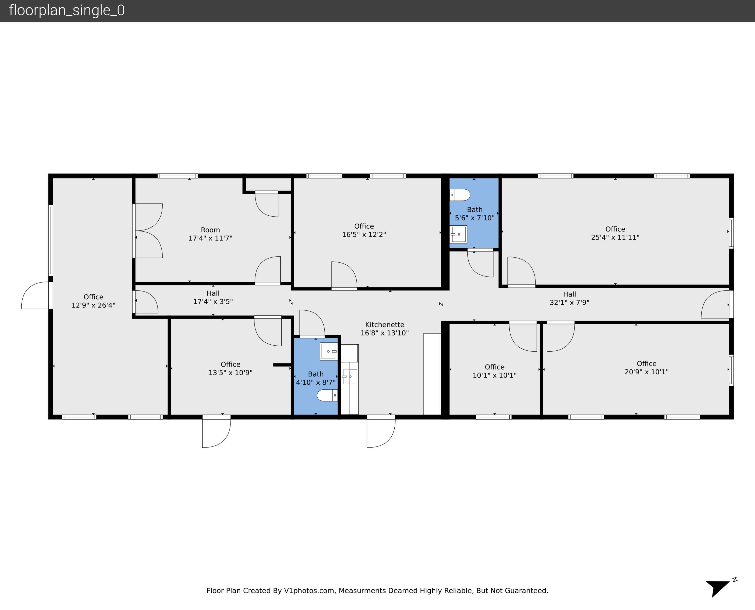
See additional remarks...Prime Office Space in Downtown Stuart , High Visibility & Modern Renovation This impressive commercial property boasts excellent visibility with dual street frontage and prominent monument signage, ensuring your business stands out. The exterior is beautifully maintained, while the fully renovated interior offers a turnkey professional environment. Inside, you'll find updated flooring throughout, multiple private offices, a welcoming reception area, a spacious conference room, two restrooms, and a generous kitchenette, perfect for hosting clients or team collaboration. Located just minutes from the Martin County Courthouse, this property is ideal for law firms, financial services, or any business seeking a strong presence in the vibrant heart of downtown Stuart. Enjoy easy access to nearby dining, shopping, and major transportation routes. Call today for your private tour!!

View Virtual Tour

Essential Information

  • MLS® #RX-11108105
  • Price$1,299,000
  • Square Footage2,184
  • Acres0.15
  • Year Built1988
  • TypeCommercial
  • Sub-TypeProfessional Office
  • StyleCommercial, Office Space
  • StatusActive

Community Information

  • SubdivisionWOODLAWN PARK
  • CityStuart
  • CountyMartin
  • StateFL
  • Zip Code34994

Address

101 Se Martin Luther King Jr Blvd

Area

8 - Stuart - North of Indian St

Interior

  • HeatingCentral, Electric
  • CoolingElectric, Central
  • # of Stories1

Appliances

Building and Land, Fixtures, Signs

Exterior

  • Lot DescriptionOffice
  • RoofMetal
  • ConstructionBlock, Frame/Stucco

Additional Information

  • Date ListedJuly 16th, 2025
  • Days on Website105
  • ZoningCM
  • Office: Atlantic Shores Era Powered

Property Location

Please provide a valid email address.

101 Se Martin Luther King Jr Blvd on www.jupiterabacoahomes.us

Offered at the current list price of $1,299,000, this home for sale at 101 Se Martin Luther King Jr Blvd features bedrooms and 0 bathrooms. This real estate listing is located in WOODLAWN PARK of Stuart, FL 34994 and is approximately 2,184 square feet. 101 Se Martin Luther King Jr Blvd is listed under the MLS ID of RX-11108105 and has been available through www.jupiterabacoahomes.us for the Stuart real estate market for 105 days.

Facts About Stuart, FL

B&A Flea Market is a fantastic eclectic street bizarre that has been in existence in Stuart Beach for over two decades.  If you are looking for a fun day of shopping and sun make sure to visit this Stuart Beach staple.

Stuart Beach is renowned for its diligent and well trained lifeguards mixed with the fantastic surf the area has it makes Stuart an excellent place to learn how to surf.

Some great local Stuart landmarks incluse the Lyric Theatre, the House of Refuge and the Elliot Museum

Similar Listings to 101 Se Martin Luther King Jr Blvd

Photo of Listing #RX-11129829
  • MLS® #: RX-11129829
  • 512 Sw Saint Lucie Crescent
  • Stuart, FL 34994
  • $1,495,000
  • 2,548 SqFt, 0.17 Acres
  • Commercial
Add as Favorite

All listings featuring the BMLS logo are provided by Beaches MLS Inc. Copyright 2025 Beaches MLS. This information is not verified for authenticity or accuracy and is not guaranteed.
© 2025 Beaches Multiple Listing Service, Inc. All rights reserved.

Listing information last updated on October 29th, 2025 at 12:31pm CDT.