1. Home
  2. Search Listings
  3. 16888 W Stallion Dr Loxahatchee, FL - 33470
  • MLS® #: RX-11103036
  • 16888 W Stallion Dr
  • Loxahatchee, FL 33470
  • $649,999
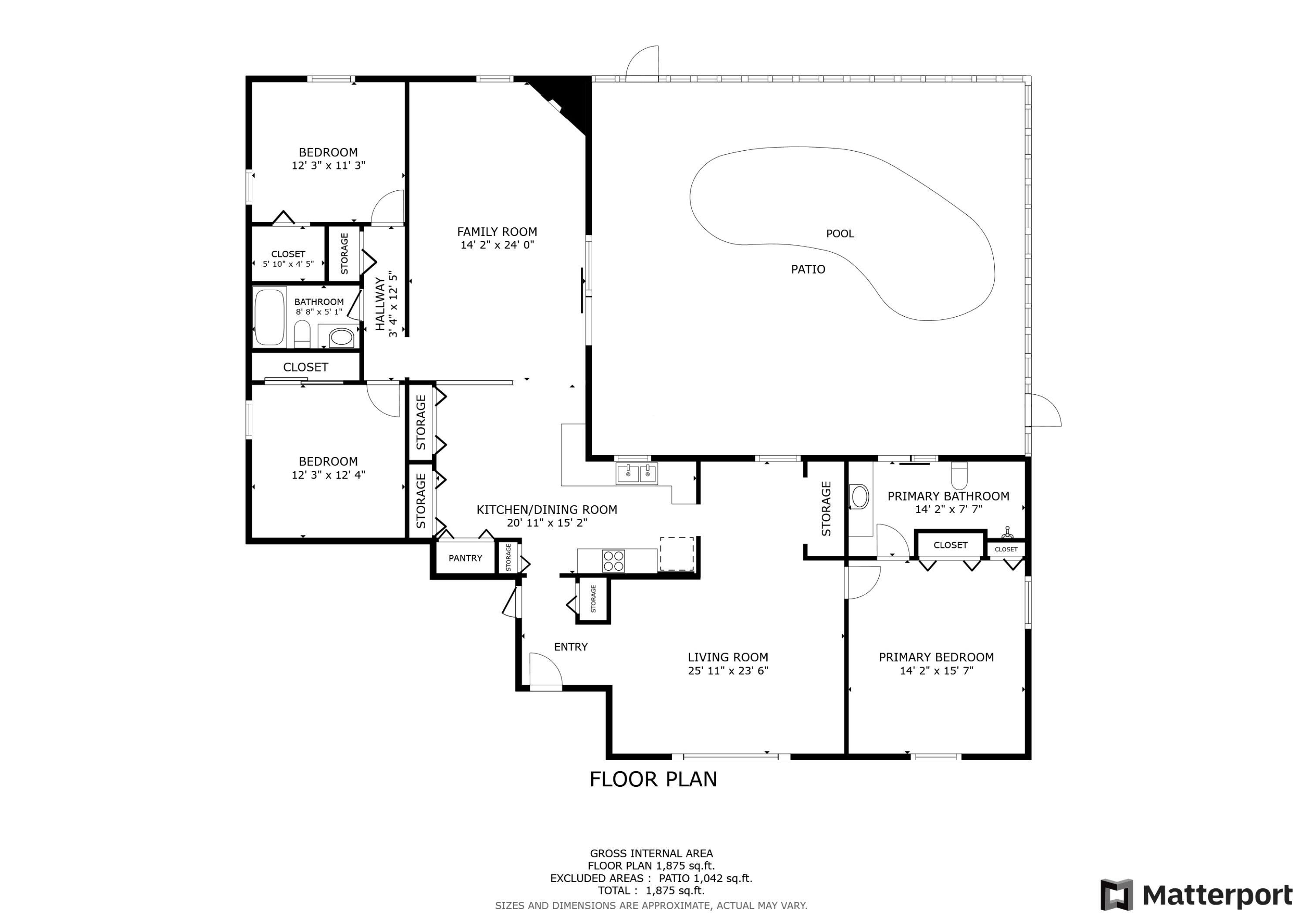
  • 4 Beds, 3 Bath, 2,626 SqFt
  • Residential

Welcome to this spacious one-level residence offering comfort, privacy, and flexibility on 1.54 acres. The main home offers 3 bedrooms and 2 baths, while the detached guest home includes 1 bedroom and 1 bath. The main home features tile flooring throughout, a welcoming stone fireplace, and abundant storage. The kitchen is equipped with a new stove and microwave (2023), and the washer and dryer were replaced in 2024. The home also includes complete hurricane shutters, whole-house window tinting (2021), and a main A/C unit and ductwork replacement (July 2024) on the south side, ensuring peace of mind and year-round comfort. The property's exterior is just as impressive, featuring a screened pool with an extended pressed concrete deck, rescreened in 2021, and a pool pump replaced in 2020.A detached guest house, large separate shed, and extended concrete drive leading to both structures provide versatility and convenience. Additional features include a fenced, private yard, circular drive, and a guest house lift pump replaced in 2023. The well pump was updated in 2022, and the exterior of the home was freshly painted in 2024. Situated on a corner lot with agriculture/residential tax benefits, this property offers flexibility for a variety of lifestyles. Located in the heart of The Acreage/Loxahatchee, FL, enjoy the unique charm of rural living with no HOAideal for those seeking space, independence, and a true Florida lifestyle.

View Virtual Tour

Essential Information

  • MLS® #RX-11103036
  • Price$649,999
  • Bedrooms4
  • Bathrooms3.00
  • Full Baths3
  • Square Footage2,626
  • Year Built1986
  • TypeResidential
  • Sub-TypeSingle Family Detached
  • StyleTraditional
  • StatusActive

Community Information

  • Address16888 W Stallion Dr
  • Area5590
  • Subdivisionthe Acreage
  • CityLoxahatchee
  • CountyPalm Beach
  • StateFL
  • Zip Code33470

Amenities

  • AmenitiesStreet Lights, None
  • # of Garages2
  • ViewPool
  • WaterfrontInterior Canal, Creek
  • Has PoolYes
  • PoolEquipment Included, Inground

Utilities

Cable, 3-Phase Electric, Septic, Well Water

Parking

2+ Spaces, Driveway, Garage - Attached, Drive - Circular

Interior

  • HeatingCentral, Electric
  • CoolingCeiling Fan, Central, Electric
  • FireplaceYes
  • # of Stories1
  • Stories1.00

Interior Features

Entry Lvl Lvng Area, Pantry, Split Bedroom, Walk-in Closet, Fireplace(s)

Appliances

Dishwasher, Dryer, Microwave, Range - Electric, Refrigerator, Storm Shutters, Washer, Water Heater - Elec, Auto Garage Open, Washer/Dryer Hookup

Exterior

  • WindowsBlinds, Sliding
  • RoofComp Shingle
  • ConstructionCBS, Frame/Stucco, Frame

Exterior Features

Fence, Shutters, Screened Patio, Extra Building

Lot Description

1 to < 2 Acres, Dirt Road, Public Road, Corner Lot, Treed Lot

School Information

  • ElementaryLoxahatchee Groves Elementary
  • MiddleOsceola Creek Middle School

High

Seminole Ridge Community High School

Additional Information

  • Date ListedJune 27th, 2025
  • Days on Website124
  • ZoningAR
  • Office: Redfin Corporation

Property Location

Please provide a valid email address.

16888 W Stallion Dr on www.jupiterabacoahomes.us

Offered at the current list price of $649,999, this home for sale at 16888 W Stallion Dr features 4 bedrooms and 3 bathrooms. This real estate listing is located in the Acreage of Loxahatchee, FL 33470 and is approximately 2,626 square feet. 16888 W Stallion Dr is listed under the MLS ID of RX-11103036 and has been available through www.jupiterabacoahomes.us for the Loxahatchee real estate market for 124 days.

Similar Listings to 16888 W Stallion Dr

Photo of Listing #RX-11101353
  • MLS® #: RX-11101353
  • 3287 Grande Rd
  • Loxahatchee, FL 33470
  • $5,200,000
  • 8 Bed, 9 Bath, 5,886 SqFt
  • Residential
Add as Favorite

All listings featuring the BMLS logo are provided by Beaches MLS Inc. Copyright 2025 Beaches MLS. This information is not verified for authenticity or accuracy and is not guaranteed.
© 2025 Beaches Multiple Listing Service, Inc. All rights reserved.

Listing information last updated on October 29th, 2025 at 5:30am CDT.