1. Home
  2. Search Listings
  3. 5832 Alton Rd Miami Beach, FL - 33140
  • MLS® #: RX-11083599
  • 5832 Alton Rd
  • Miami Beach, FL 33140
  • $2,790,000
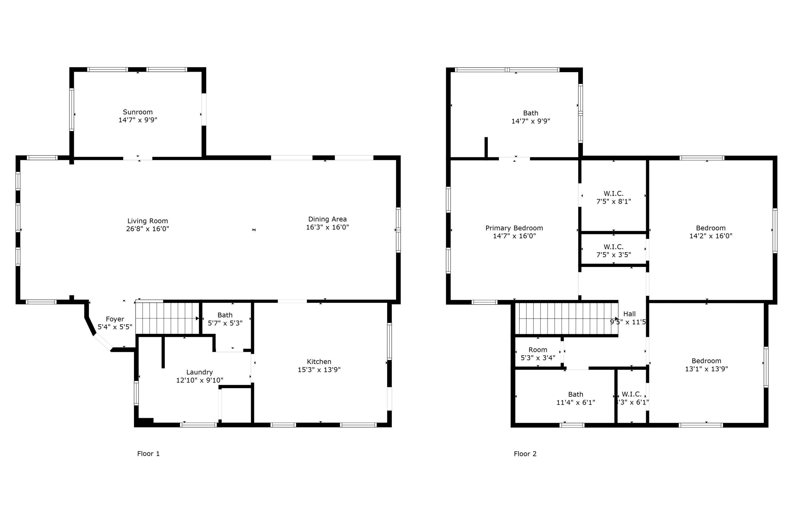
  • 3 Beds, 3 Bath, 2,599 SqFt
  • Residential

Lowest priced complete home remodel in Miami Beach. Be the first to live in this complete home remodel within the best mid-beach location- ''LaGorce Golf Subdivision.'' No HOA or any required membership to live in this gorgeous sub-division. Home has a terrific layout at 2,599 sq. ft., and features 3 large bedrooms, 2.5 baths with a separate office and laundry room. Top of the line Duchateau white oak flooring throughout. New impact windows, new concrete tile roof with lifetime warranty, two new AC units, chef inspired Thor kitchen, refurbished saltwater pool, new Azenco pergola with tv, new Bull outdoor kitchen, an oversized gorgeous lot in the best and safest mid beach location. Come see this gem today!

View Virtual Tour

Essential Information

  • MLS® #RX-11083599
  • Price$2,790,000
  • Bedrooms3
  • Bathrooms3.00
  • Full Baths2
  • Half Baths1
  • Square Footage2,599
  • Year Built1925
  • TypeResidential
  • Sub-TypeSingle Family Detached
  • StyleMediterranean, Multi-Level
  • StatusActive

Community Information

  • Address5832 Alton Rd
  • Area2320
  • SubdivisionLA GORCE GOLF SUB
  • CityMiami Beach
  • CountyMiami-Dade
  • StateFL
  • Zip Code33140

Amenities

  • AmenitiesPark, Sidewalks, Street Lights
  • Parking2+ Spaces
  • WaterfrontNone
  • Has PoolYes
  • PoolInground

Utilities

3-Phase Electric, Gas Natural, Public Sewer, Public Water

Interior

  • Interior FeaturesWalk-in Closet
  • HeatingCentral
  • CoolingCentral
  • # of Stories2
  • Stories2.00

Appliances

Dishwasher, Disposal, Dryer, Microwave, Range - Gas, Refrigerator, Washer

Exterior

  • Lot Description< 1/4 Acre
  • WindowsImpact Glass
  • RoofConcrete Tile
  • ConstructionBlock, Concrete

Exterior Features

Auto Sprinkler, Built-in Grill, Extra Building, Fence, Open Patio, Summer Kitchen

School Information

  • ElementaryNorth Beach Elementary School
  • MiddleNautilus Middle School
  • HighMiami Beach Senior High School

Additional Information

  • Date ListedApril 22nd, 2025
  • Days on Website250
  • Zoning0100
  • Office: Premier Brokers International

Property Location

Please provide a valid email address.

5832 Alton Rd on www.jupiterabacoahomes.us

Offered at the current list price of $2,790,000, this home for sale at 5832 Alton Rd features 3 bedrooms and 3 bathrooms. This real estate listing is located in LA GORCE GOLF SUB of Miami Beach, FL 33140 and is approximately 2,599 square feet. 5832 Alton Rd is listed under the MLS ID of RX-11083599 and has been available through www.jupiterabacoahomes.us for the Miami Beach real estate market for 250 days.

Facts About Miami Beach, FL

Over the past 20 years, no American beach has generated as much buzz as the one that hugs Ocean Drive in Miami Beach. Fringed with palms, backed by Art Deco architecture and pulsating with urban energy, South Beach is the place to stretch out.

Similar Listings to 5832 Alton Rd

Photo of Listing #RX-11147207
  • MLS® #: RX-11147207
  • 775 W 49th St
  • Miami Beach, FL 33140
  • $2,310,000
  • 4 Bed, 4 Bath, 2,202 SqFt
  • Residential
Add as Favorite

All listings featuring the BMLS logo are provided by Beaches MLS Inc. Copyright 2025 Beaches MLS. This information is not verified for authenticity or accuracy and is not guaranteed.
© 2025 Beaches Multiple Listing Service, Inc. All rights reserved.

Listing information last updated on December 28th, 2025 at 8:30am CST.