1. Home
  2. Search Listings
  3. 5261 Se Burning Tree Cir Stuart, FL - 34997
  • MLS® #: RX-11054201
  • 5261 Se Burning Tree Cir
  • Stuart, FL 34997
  • $699,000
  • 3 Beds, 3 Bath, 2,610 SqFt
  • Residential

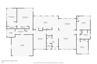
Step into this beautifully designed single-family home, featuring a NEW metal roof.With a thoughtfully designed split floor plan, this home is ideal for comfortable living and entertaining.The interior boasts tile flooring throughout, a spacious living area, and an extra space perfect for a home office or den. Additionally, a bonus storage space gives you plenty of space to store your belongings. The stunning kitchen is a chef's dream, complete with a gas stove and ample counter space for meal preparation and entertaining. The bedrooms are generously sized, providing plenty of room for family or guests, and the primary suite offerspeaceful retreat separate from the other bedrooms. There is also a whole house generator and 2 propane tanks. On the golf course and plenty of room for a pool. Mariner Sands Country Club offers 2 championship golf courses, tennis, pickleball, croquet, a world-class fitness center, resort-style pool, restaurant, and a new $35 million clubhouse.

View Virtual Tour

Essential Information

  • MLS® #RX-11054201
  • Price$699,000
  • Bedrooms3
  • Bathrooms3.00
  • Full Baths2
  • Half Baths1
  • Square Footage2,610
  • Year Built1981
  • TypeResidential
  • Sub-TypeSingle Family Detached
  • StatusPending

Community Information

  • Address5261 Se Burning Tree Cir
  • SubdivisionMARINER SANDS COUNTRY CLUB
  • CityStuart
  • CountyMartin
  • StateFL
  • Zip Code34997

Area

14 - Hobe Sound/Stuart - South of Cove Rd

Amenities

  • # of Garages2
  • WaterfrontNone

Amenities

Pool, Golf Course, Tennis, Exercise Room, Game Room, Putting Green, Cafe/Restaurant, Pickleball, Playground, Dog Park

Utilities

Public Sewer, Public Water, Cable

Parking

Garage - Attached, Driveway, Vehicle Restrictions

Interior

  • Interior FeaturesEntry Lvl Lvng Area
  • HeatingCentral, Electric
  • CoolingCentral, Electric
  • # of Stories1
  • Stories1.00

Appliances

Dishwasher, Dryer, Microwave, Refrigerator, Washer, Auto Garage Open, Range - Gas, Generator Whle House

Exterior

  • Exterior FeaturesOpen Patio, Fence
  • Lot Description1/4 to 1/2 Acre
  • RoofMetal
  • ConstructionFrame

Additional Information

  • Date ListedJanuary 20th, 2025
  • Days on Website283
  • ZoningRES
  • HOA Fees1499
  • HOA Fees Freq.Monthly
  • Office: Nv Realty Group, Llc

Property Location

Please provide a valid email address.

5261 Se Burning Tree Cir on www.jupiterabacoahomes.us

Offered at the current list price of $699,000, this home for sale at 5261 Se Burning Tree Cir features 3 bedrooms and 3 bathrooms. This real estate listing is located in MARINER SANDS COUNTRY CLUB of Stuart, FL 34997 and is approximately 2,610 square feet. 5261 Se Burning Tree Cir is listed under the MLS ID of RX-11054201 and has been available through www.jupiterabacoahomes.us for the Stuart real estate market for 283 days.

Facts About Stuart, FL

Stuart Beach is renowned for its diligent and well trained lifeguards mixed with the fantastic surf the area has it makes Stuart an excellent place to learn how to surf.

Struart Florida is nicknamed the "The Sailfish Capital of the World"

B&A Flea Market is a fantastic eclectic street bizarre that has been in existence in Stuart Beach for over two decades.  If you are looking for a fun day of shopping and sun make sure to visit this Stuart Beach staple.

Similar Listings to 5261 Se Burning Tree Cir

Photo of Listing #RX-11090917
  • MLS® #: RX-11090917
  • 6022 Se Oakmont Pl
  • Stuart, FL 34997
  • $714,900
  • 2 Bed, 3 Bath, 2,434 SqFt
  • Residential
Add as Favorite
Photo of Listing #RX-11055483
  • MLS® #: RX-11055483
  • 4360 Se Kubin Av
  • Stuart, FL 34997
  • $699,000
  • 3 Bed, 2 Bath, 2,132 SqFt
  • Residential
Add as Favorite
Photo of Listing #RX-11076318
  • MLS® #: RX-11076318
  • 3439 Se Fairway Oaks Trl
  • Stuart, FL 34997
  • $719,000
  • 4 Bed, 3 Bath, 2,405 SqFt
  • Residential
Add as Favorite
Photo of Listing #RX-11080210
  • MLS® #: RX-11080210
  • 3510 Se Cambridge Dr
  • Stuart, FL 34997
  • $689,900
  • 3 Bed, 2 Bath, 2,636 SqFt
  • Residential
Add as Favorite

All listings featuring the BMLS logo are provided by Beaches MLS Inc. Copyright 2025 Beaches MLS. This information is not verified for authenticity or accuracy and is not guaranteed.
© 2025 Beaches Multiple Listing Service, Inc. All rights reserved.

Listing information last updated on October 30th, 2025 at 8:16am CDT.