1. Home
  2. Search Listings
  3. 3905 Nw 58th Street Boca Raton, FL - 33496
  • MLS® #: R11165558
  • 3905 Nw 58th Street
  • Boca Raton, FL 33496
  • $1,295,000
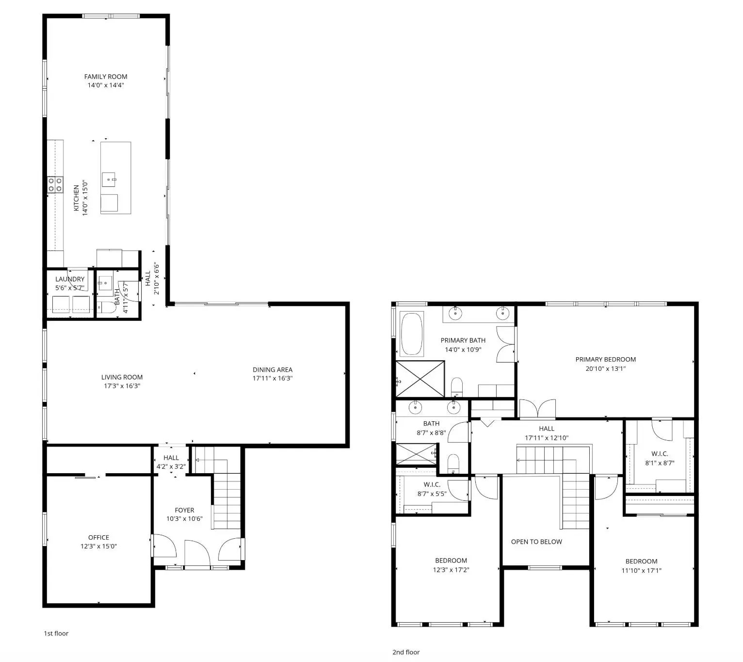
  • 3 Beds, 3 Bath, 2,470 SqFt
  • Residential

Stunning 3 BD 2.5 BA (plus office) in Cambridge Park with picturesque golf and lake views, as well as a thoughtfully updated layout designed for everyday living and entertaining. Two distinct living areas are both positioned to capture the stunning water and fairway backdrop. A spacious renovated kitchen anchors the home with high-tech appliances and modern finishes, flowing seamlessly into the living spaces. The upstairs primary bedroom features a walk-in closet and an updated en suite bathroom, with two additional bedrooms located upstairs. A dedicated office on the main level offers flexibility for work or guests. The renovated courtyard provides a private outdoor retreat, and a new roof adds peace of mind to this well maintained residence.

Essential Information

  • MLS® #R11165558
  • Price$1,295,000
  • Bedrooms3
  • Bathrooms3.00
  • Full Baths2
  • Half Baths1
  • Square Footage2,470
  • Year Built1988
  • TypeResidential
  • Sub-TypeTownhouse
  • StatusPending

Community Information

  • Address3905 Nw 58th Street
  • Area4640
  • SubdivisionCambridge Park
  • CityBoca Raton
  • CountyPalm Beach
  • StateFL
  • Zip Code33496

Amenities

  • UtilitiesWater Available
  • ParkingGarage, Attached Garage
  • # of Garages1
  • ViewGolf Course, Lake
  • WaterfrontLake Front

Amenities

Basketball Court, Clubhouse, Fitness Center, Game Room, Sauna, Tennis Court(s), Cafe/Restaurant, Community Room

Interior

  • HeatingCentral
  • CoolingCentral Air
  • # of Stories2
  • StoriesMulti/Split

Appliances

Dryer, Dishwasher, Electric Range, Microwave, Refrigerator, Washer

Exterior

  • RoofConcrete, Tile
  • ConstructionCBS

School Information

  • ElementaryCalusa (Palm Beach)
  • MiddleOmni
  • HighSpanish River

Additional Information

  • Date ListedFebruary 20th, 2026
  • Days on Website27
  • ZoningR1D_PU
  • HOA Fees1000
  • HOA Fees Freq.Monthly
  • Office: Compass Florida Llc

Property Location

Please provide a valid email address.

3905 Nw 58th Street on www.jupiterabacoahomes.us

Offered at the current list price of $1,295,000, this home for sale at 3905 Nw 58th Street features 3 bedrooms and 3 bathrooms. This real estate listing is located in Cambridge Park of Boca Raton, FL 33496 and is approximately 2,470 square feet. 3905 Nw 58th Street is listed under the MLS ID of R11165558 and has been available through www.jupiterabacoahomes.us for the Boca Raton real estate market for 27 days.

Similar Listings to 3905 Nw 58th Street

Photo of Listing #R11160421
  • MLS® #: R11160421
  • 5696 Nw 39th Avenue
  • Boca Raton, FL 33496
  • $1,350,000
  • 3 Bed, 4 Bath, 2,480 SqFt
  • Residential
Add as Favorite
Photo of Listing #R11131939
  • MLS® #: R11131939
  • 5545 Ne Trieste Way
  • Boca Raton, FL 33487
  • $1,150,000
  • 3 Bed, 4 Bath, 3,244 SqFt
  • Residential
Add as Favorite
Photo of Listing #R11138415
  • MLS® #: R11138415
  • 5645 Ne Trieste Way
  • Boca Raton, FL 33487
  • $1,250,000
  • 3 Bed, 4 Bath, 3,134 SqFt
  • Residential
Add as Favorite
Photo of Listing #F10540715
  • MLS® #: F10540715
  • 876 Jeffery Street
  • Boca Raton, FL 33487
  • $1,200,000
  • 3 Bed, 3 Bath, 1,398 SqFt
  • Residential
Add as Favorite

All listings featuring the BMLS logo are provided by Beaches MLS Inc. Copyright 2026 Beaches MLS. This information is not verified for authenticity or accuracy and is not guaranteed.
© 2026 Beaches Multiple Listing Service, Inc. All rights reserved.

Listing information last updated on March 19th, 2026 at 4:20pm CDT.