1. Home
  2. Search Listings
  3. 4451 Willow Pond Road #b West Palm Beach, FL - 33417
  • MLS® #: R11143159
  • 4451 Willow Pond Road #b
  • West Palm Beach, FL 33417
  • $398,000
  • 3 Beds, 3 Bath, 1,683 SqFt
  • Residential

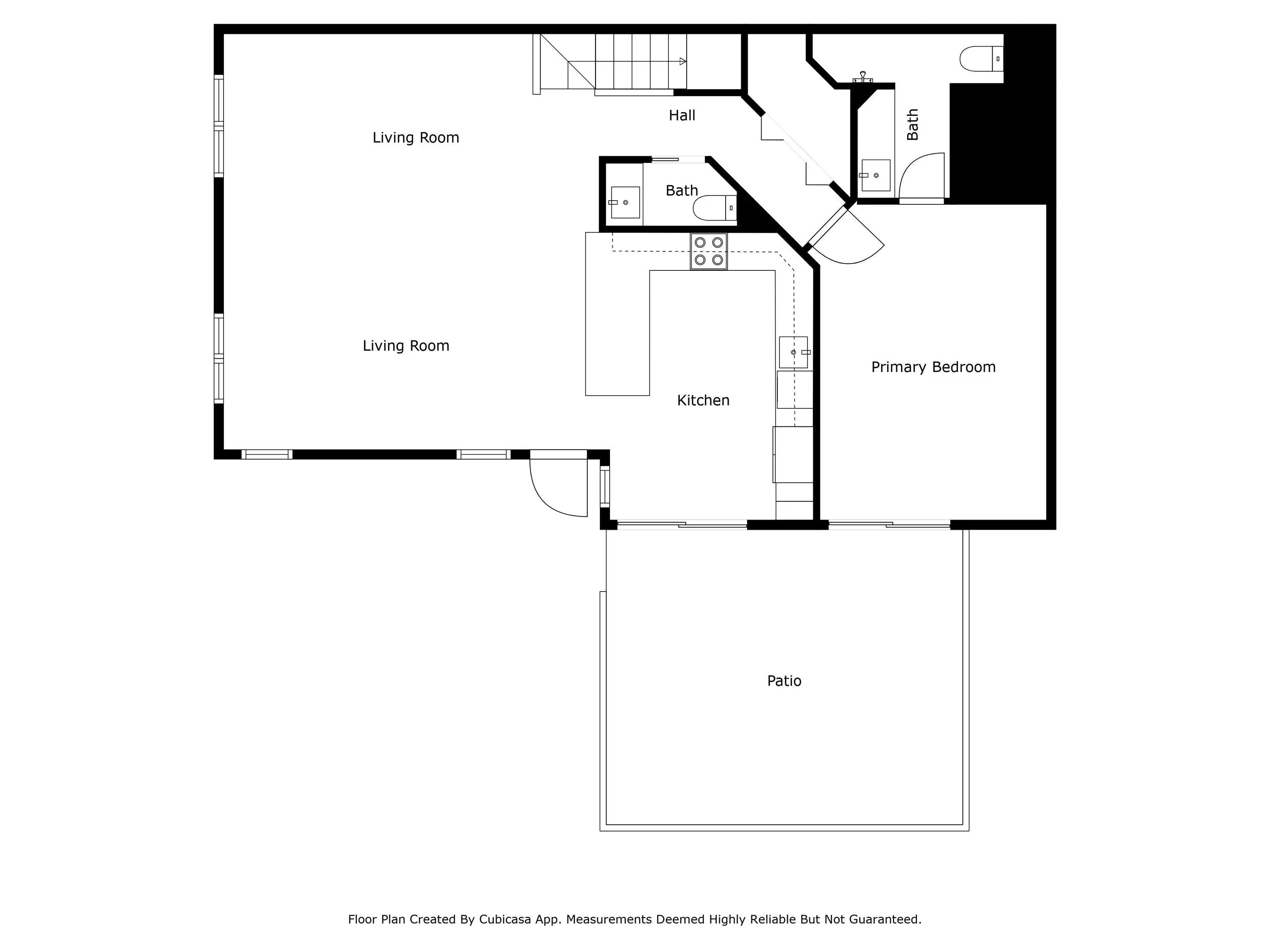
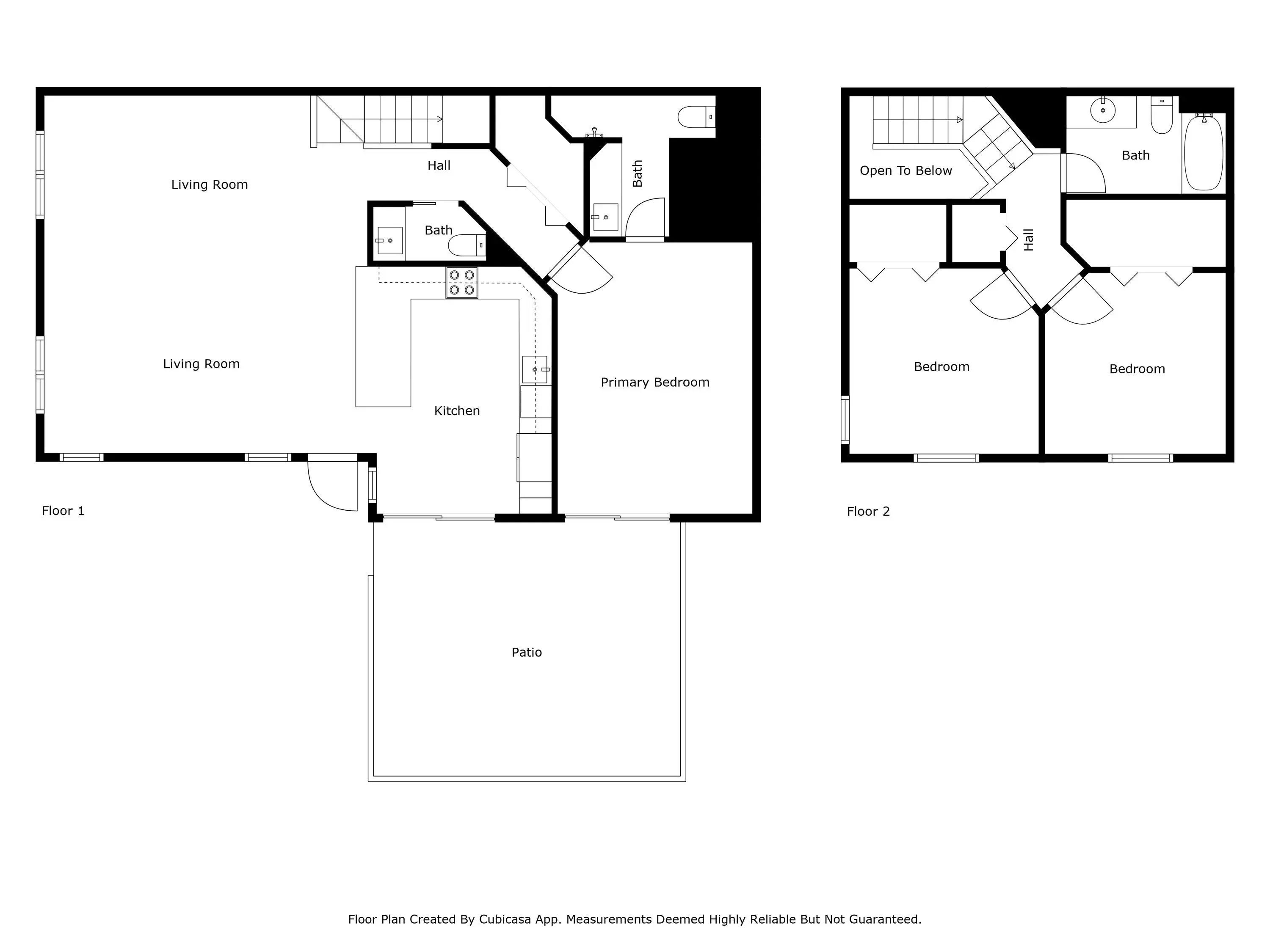
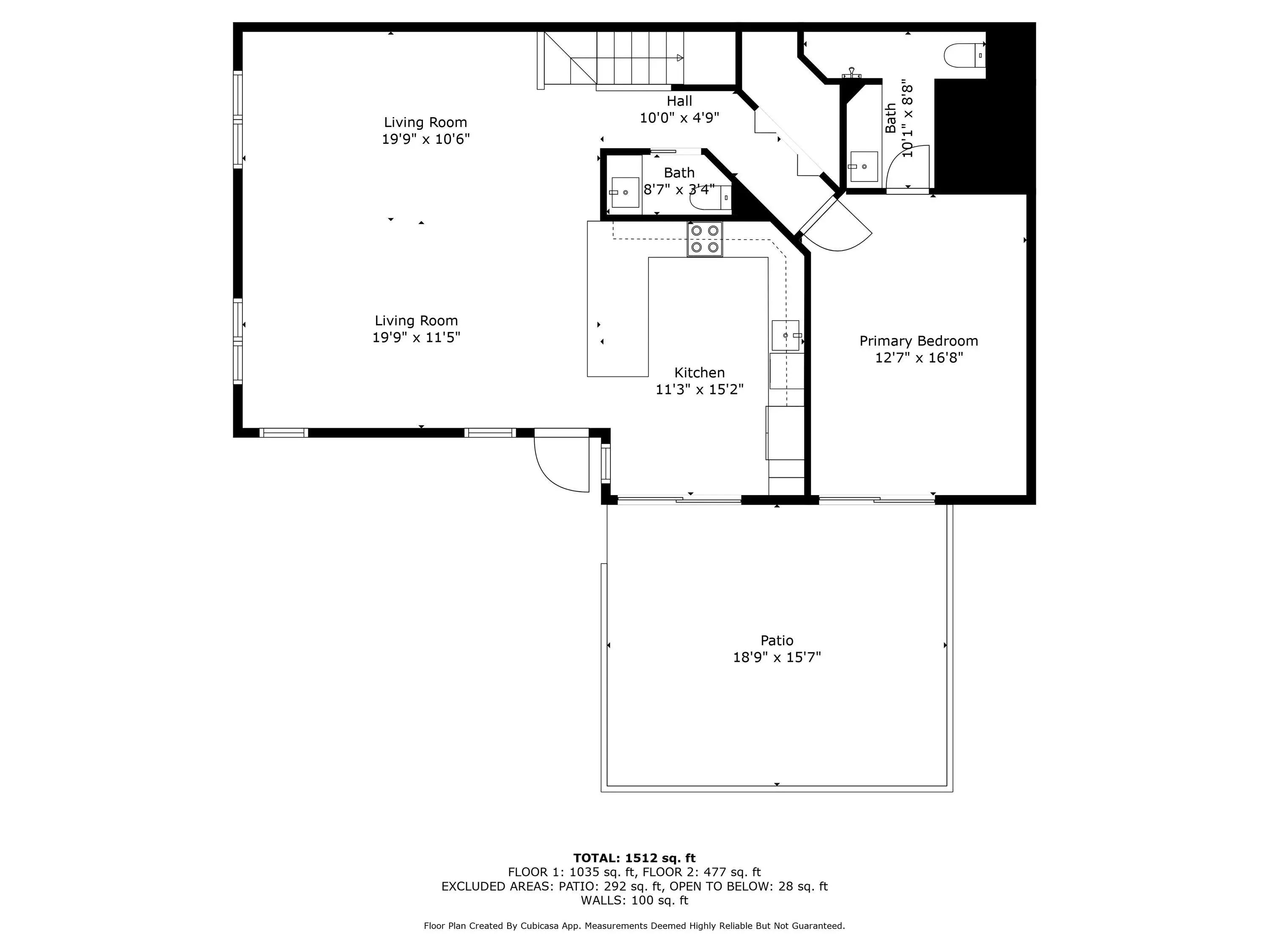
With nearly 1,700 sq ft of beautifully redone living space, this 3 bedroom, 2.5 bathroom CBS townhouse lives large, like a single-family home. Every inch has been reimagined: from a new roof to all-new plumbing throughout the entire place, and a layout that flows with ease. The open living, dining, and kitchen area is full of sunlight with soaring ceilings and tranquil lake views. The kitchen is custom-crafted for both beauty and function, featuring quartz countertops, butcher block shelves, and new appliances, all anchored by a spacious island that invites conversation and connection. The primary suite is tucked away on the main floor with private patio access, a generous walk-in closet, and a spa-inspired renovated bathroom with real wood cabinetry, new toilet, new quartz countertops, and a walk-in shower with new marble like tile that feels like a quiet getaway. A half bathroom is conveniently located downstairs for guests and has been completely redone - all new toilet, vanity with quartz countertop, hardware, flooring and light fixture. Upstairs, two more bedrooms offer peaceful lake views and another renovated bathroom with a large real-wood vanity cabinet, quartz countertops, new toilet, new tile flooring, new tile around the bathtub and new hardware fixtures throughout. Everything has been updatednew laminate floors, new high hat lighting, new dining-room chandelier and lighting by the staircase, new A/C (5 year warranty), new hot water heater, new baseboards, and even the ceilings have had popcorn removal. Worry free hurricanes with a complete set of hurricane accordion shutters. You can just move in and live. The private fenced patio adds a cozy outdoor nook, and the community surrounds you with amenities 2 pools (one just steps away), fitness center, clubhouse, community room, racquet ball courts, tennis courts, playground, walking paths, and more. It's quiet here, tucked away from the noisebut everything you need is just minutes away. Downtown West Palm Beach, CityPlace, the airport, the beach, tons of shops and restaurantsit's all close. The HOA covers common areas, trash removal, pool service, lawn care, and exterior/roof maintenance and insurance on the building making your home owners insurance very low!

Essential Information

  • MLS® #R11143159
  • Price$398,000
  • Bedrooms3
  • Bathrooms3.00
  • Full Baths2
  • Half Baths1
  • Square Footage1,683
  • Year Built1986
  • TypeResidential
  • Sub-TypeTownhouse
  • StyleQuad
  • StatusPending

Community Information

  • Address4451 Willow Pond Road #b
  • Area5400
  • SubdivisionLAKESIDE GREEN 5
  • CityWest Palm Beach
  • CountyPalm Beach
  • StateFL
  • Zip Code33417

Amenities

  • Parking Spaces2
  • ParkingAssigned, Deeded, Guest
  • ViewLake
  • Is WaterfrontYes
  • WaterfrontLake Front

Amenities

Clubhouse, Fitness Center, Game Room, Park, Playground, Pool, Tennis Court(s), Manager On Site, Community Room, Library, Sidewalks, Street Lights

Utilities

Cable Available, Sewer Available, Water Available

Interior

  • HeatingCentral
  • CoolingCentral Air
  • # of Stories2

Interior Features

Cathedral Ceiling(s), High Ceilings, Vaulted Ceiling(s), Walk-In Closet(s)

Appliances

Electric Water Heater, Dryer, Dishwasher, Electric Range, Microwave, Refrigerator, Water Heater, Washer

Exterior

  • RoofComposition, Shingle
  • ConstructionStucco, CBS

School Information

  • ElementarySeminole Trails
  • MiddleBear Lakes
  • HighPalm Beach Lakes

Additional Information

  • Date ListedNovember 24th, 2025
  • Days on Website106
  • ZoningRS
  • HOA Fees460
  • HOA Fees Freq.Monthly
  • Office: Rinker Realty Inc

Property Location

Please provide a valid email address.

4451 Willow Pond Road #b on www.jupiterabacoahomes.us

Offered at the current list price of $398,000, this home for sale at 4451 Willow Pond Road #b features 3 bedrooms and 3 bathrooms. This real estate listing is located in LAKESIDE GREEN 5 of West Palm Beach, FL 33417 and is approximately 1,683 square feet. 4451 Willow Pond Road #b is listed under the MLS ID of R11143159 and has been available through www.jupiterabacoahomes.us for the West Palm Beach real estate market for 106 days.

Facts About West Palm Beach, FL

To enjoy a taste of the local ethnic cuisine that has inspired West Palm Beach since its inception visit Havana. This Cuban-style restaurant features specialties like Cuban coffee, fried churros , exotic fruits and slow roasted Spanish chicken.

West Palm Beach is home to the Bel Air Historic District. It was built in the 20s and 30s and boast some of Palm Beach's most beautiful and historic architecture.

If you are looking for some vibrant nightlife in West Palm Beach then visit Dr. Feelgood's Rock Bar and Grill. This colorful nightclub was created by Motley Crue’s front man Vince Neil and is a exciting venue for those looking for some great West Palm Beach nightlife.

Similar Listings to 4451 Willow Pond Road #b

Photo of Listing #R11125966
  • MLS® #: R11125966
  • 4321 Maybelle Lane
  • West Palm Beach, FL 33417
  • $384,995
  • 3 Bed, 3 Bath, 1,500 SqFt
  • Residential
Add as Favorite
Photo of Listing #R11158813
  • MLS® #: R11158813
  • 4545 Tara Cove Way
  • West Palm Beach, FL 33417
  • $424,900
  • 3 Bed, 3 Bath, 1,806 SqFt
  • Residential
Add as Favorite
Photo of Listing #F10546789
  • MLS® #: F10546789
  • 5045 Ellery Terrace
  • West Palm Beach, FL 33417
  • $429,000
  • 4 Bed, 3 Bath, 1,737 SqFt
  • Residential
Add as Favorite
Photo of Listing #R11169623
  • MLS® #: R11169623
  • 4335 Maybelle Lane
  • West Palm Beach, FL 33417
  • $365,000
  • 3 Bed, 3 Bath, 1,499 SqFt
  • Residential
Add as Favorite

All listings featuring the BMLS logo are provided by Beaches MLS Inc. Copyright 2026 Beaches MLS. This information is not verified for authenticity or accuracy and is not guaranteed.
© 2026 Beaches Multiple Listing Service, Inc. All rights reserved.

Listing information last updated on March 10th, 2026 at 7:29am CDT.