1. Home
  2. Search Listings
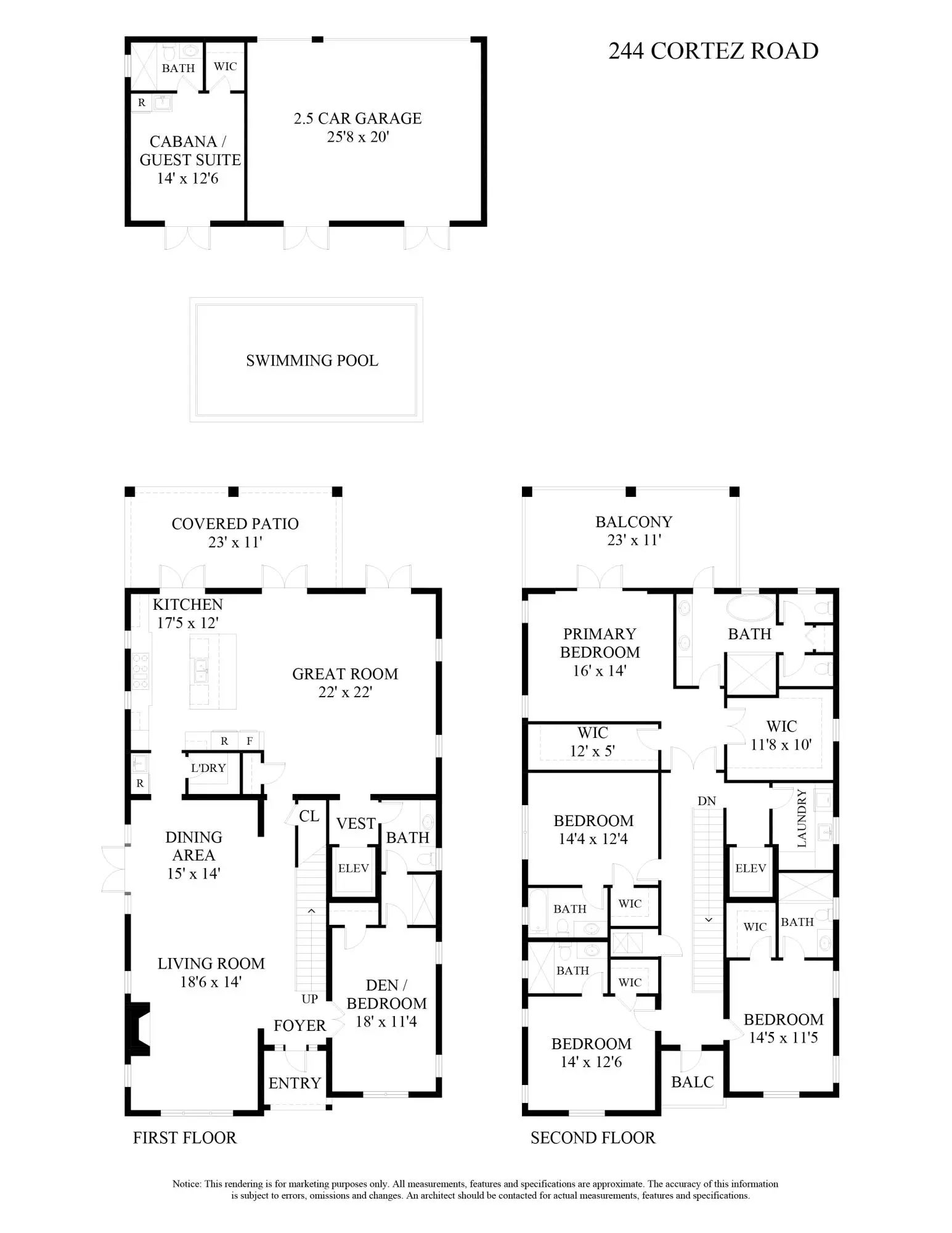
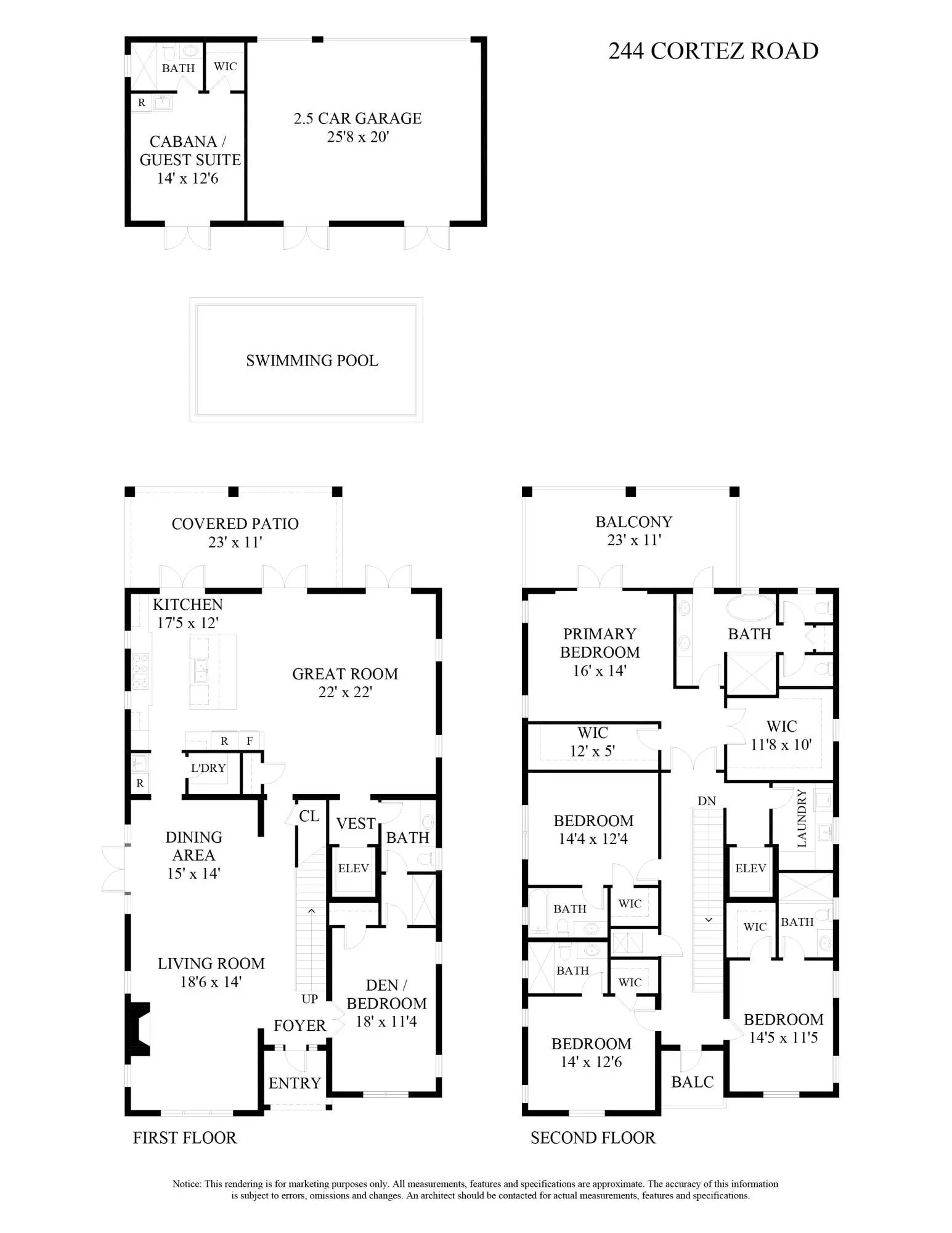
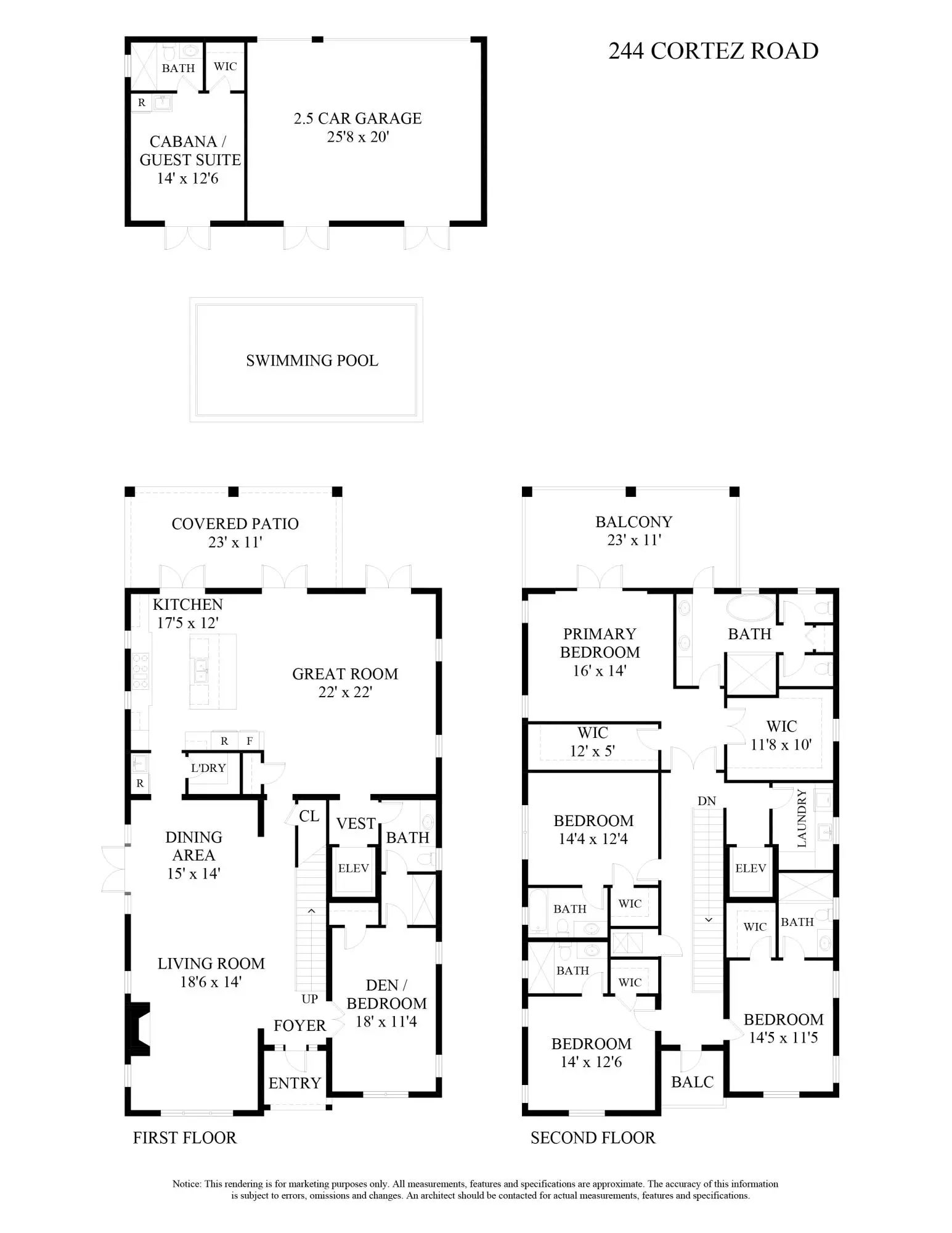
  3. 244 Cortez Road West Palm Beach, FL - 33405
  • MLS® #: R11142667
  • 244 Cortez Road
  • West Palm Beach, FL 33405
  • $6,350,000
  • 6 Beds, 6 Bath, 4,749 SqFt
  • Residential

Situated south of Southern Boulevard and east of Olive Avenue, this sophisticated new-construction residence showcases classic architecture and timeless elegance. Scheduled for completion in January 2026, the main home offers five bedrooms and five bathrooms, including a versatile first-floor suite perfectly suited as a study or library. The property features a formal living and dining room with a fireplace, a designer kitchen, and a family room with a breakfast area. Highlights include a custom elevator, ample storage, soaring ceiling heights of 10'4'' on the main level and 9'4'' on the second, and generous windows that fill the home with natural light. Positioned on one of SOSO's premier streets, the residence offers rear alleyway access to an air-conditioned 2½-car garage and is complemented by a detached one-bedroom guest suite/cabana with a full bath. A beautifully designed pool and outdoor living area create a serene extension of the home ideal for relaxation and entertaining. Thoughtfully curated interior design selections further elevate the property, offering a level of sophistication certain to appeal to the most discerning buyer.

Essential Information

  • MLS® #R11142667
  • Price$6,350,000
  • Bedrooms6
  • Bathrooms6.00
  • Full Baths6
  • Square Footage4,749
  • Year Built2025
  • TypeResidential
  • Sub-TypeSingle Family Residence
  • StatusActive

Community Information

  • Address244 Cortez Road
  • Area5440
  • SubdivisionTOLEDO
  • CityWest Palm Beach
  • CountyPalm Beach
  • StateFL
  • Zip Code33405

Amenities

  • AmenitiesSidewalks
  • ParkingGarage, Detached Garage
  • # of Garages3
  • ViewPool
  • WaterfrontNone
  • Has PoolYes
  • PoolIn Ground, Salt Water

Interior

  • HeatingCentral, Zoned
  • CoolingCentral Air, Zoned
  • FireplaceYes
  • # of Stories2

Interior Features

Elevator, Pantry, Wet Bar, Walk-In Closet(s), Storage

Appliances

Dryer, Disposal, Dishwasher, Free-Standing Freezer, Gas Range, Ice Maker, Microwave, Refrigerator, Washer

Exterior

  • Exterior FeaturesBalcony
  • WindowsSliding
  • RoofMetal
  • ConstructionCBS

School Information

  • ElementarySouth Olive
  • MiddleConniston Community
  • HighForest Hill

Additional Information

  • Date ListedNovember 24th, 2025
  • Days on Website99
  • ZoningSF7(ci
  • Office: Brown Harris Stevens Of Pb

Property Location

Please provide a valid email address.

244 Cortez Road on www.jupiterabacoahomes.us

Offered at the current list price of $6,350,000, this home for sale at 244 Cortez Road features 6 bedrooms and 6 bathrooms. This real estate listing is located in TOLEDO of West Palm Beach, FL 33405 and is approximately 4,749 square feet. 244 Cortez Road is listed under the MLS ID of R11142667 and has been available through www.jupiterabacoahomes.us for the West Palm Beach real estate market for 99 days.

Facts About West Palm Beach, FL

West Palm Beach is home to the Bel Air Historic District. It was built in the 20s and 30s and boast some of Palm Beach's most beautiful and historic architecture.

West Palm Beach is home to Lion Country Safari. It is a 500-acre cage less zoo that has thousands of free roaming animals. It would make a great stop for the family if you are visiting West Palm Beach.

West Palm Beach is home to many festivals and events. They are often hosted at Currie Park which is a scenic family friendly park located on West Palm Beache's Intracoastal Waterway.

Similar Listings to 244 Cortez Road

Photo of Listing #R11139469
  • MLS® #: R11139469
  • 119 Alpine Road
  • West Palm Beach, FL 33405
  • $6,250,000
  • 4 Bed, 5 Bath, 3,957 SqFt
  • Residential
Add as Favorite
Photo of Listing #R11121959
  • MLS® #: R11121959
  • 285 Monceaux Road
  • West Palm Beach, FL 33405
  • $6,295,000
  • 5 Bed, 6 Bath, 4,209 SqFt
  • Residential
Add as Favorite
Photo of Listing #R11143499
  • MLS® #: R11143499
  • 4444 Washington Road
  • West Palm Beach, FL 33405
  • $6,495,000
  • 4 Bed, 5 Bath, 3,434 SqFt
  • Residential
Add as Favorite
Photo of Listing #R11150313
  • MLS® #: R11150313
  • 265 Marlborough Road
  • West Palm Beach, FL 33405
  • $6,495,000
  • 6 Bed, 7 Bath, 3,613 SqFt
  • Residential
Add as Favorite

All listings featuring the BMLS logo are provided by Beaches MLS Inc. Copyright 2026 Beaches MLS. This information is not verified for authenticity or accuracy and is not guaranteed.
© 2026 Beaches Multiple Listing Service, Inc. All rights reserved.

Listing information last updated on March 3rd, 2026 at 10:01pm CST.