1. Home
  2. Search Listings
  3. 221 Monroe Drive West Palm Beach, FL - 33405
  • MLS® #: R11027557
  • 221 Monroe Drive
  • West Palm Beach, FL 33405
  • $9,800,000
  • 6 Beds, 7 Bath, 5,282 SqFt
  • Residential

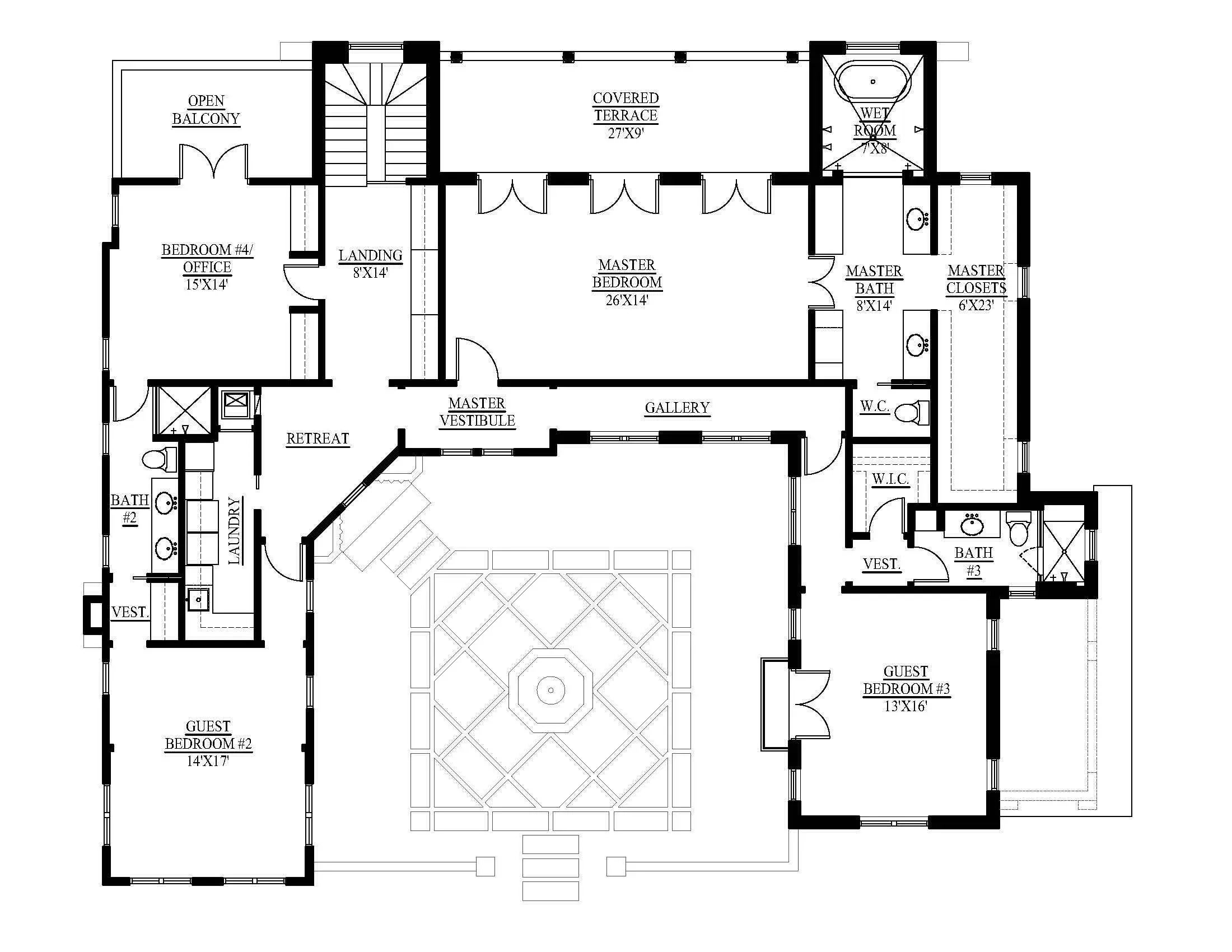
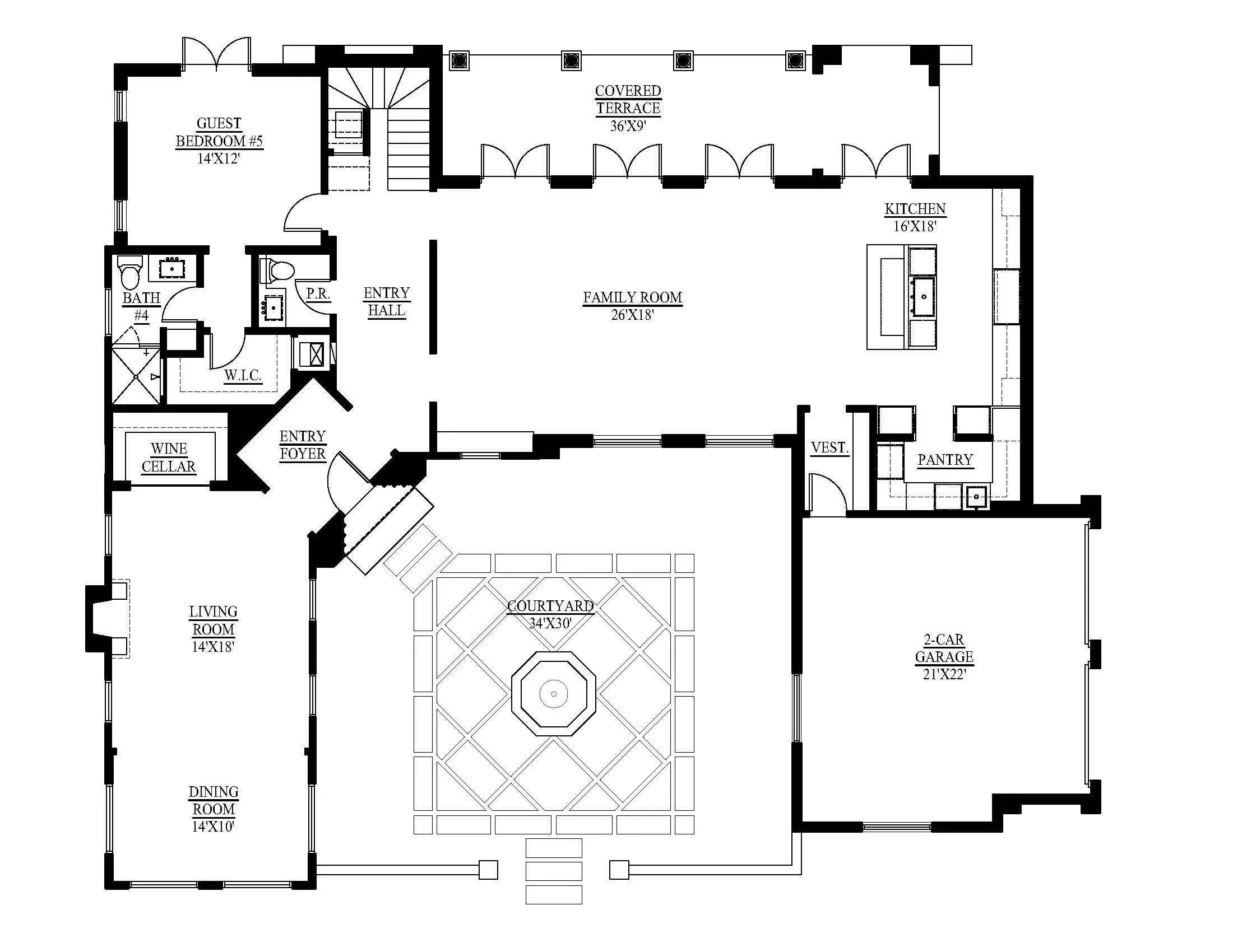
Historic-meets-new construction. Originally built in 1925, this residence has been taken down to the studs and is undergoing an expansive transformation nearly doubling in size to just under 5,000sf of luxurious living space in the main house with 5 BR & 4.1 BA, plus a 410 sf detached guest suite, and a pool cabana with a half bath and outdoor shower--a seamless blend of beloved and coveted historic charm and thoughtful modernity. Imagined by CBG Developers, Gengler Architects, and SMR Consulting, 221 is set to be crafted with the finest materials and finishes. **APPROVED FOR HISTORIC PROPERTY TAX EXEMPTION -- significant savings potential and value against neighboring non-historic new construction homes. Inquire for customization options. Greeted by a fountain-centered courtyard primed for cocktail gatherings, this Mediterranean property with bougainvillea framed entryways and picture windows is a showstopper in the neighborhood. The centerpiece of the backyard is a shimmering saltwater pool, pillared by four towering palm trees, creating a chic tropical oasis. The pool cabana is equipped with an outdoor shower, kitchen, bathroom and lounging area for effortless entertaining. When hosting family or friends, the second-floor suite, with a kitchenette and washer/dryer, overlooking the grand backyard from its private balcony will serve as a retreat offering privacy and comfort. Located steps away from the Intracoastal and the renowned Antique Row. You're minutes from downtown WPB, Palm Beach Island, and PBIA, along with the rapidly growing scene of top-tier shopping, entertainment, and dining, expanding from Northwood to SoSo - putting 221 Monroe right at the center of it all. All renderings are conceptual and are subject to change without notice. All features, specifications, and plans are subject to change without notice. Not all amenities, features, finishes, and decorative objects depicted herein may be constructed or included in accordance with the artist's renderings or descriptions.

Essential Information

  • MLS® #R11027557
  • Price$9,800,000
  • Bedrooms6
  • Bathrooms7.00
  • Full Baths5
  • Half Baths2
  • Square Footage5,282
  • Year Built1925
  • TypeResidential
  • Sub-TypeSingle Family Residence
  • StyleOld Spanish, Mediterranean
  • StatusActive

Community Information

  • Address221 Monroe Drive
  • Area5440
  • SubdivisionSOUTHLAND PARK
  • CityWest Palm Beach
  • CountyPalm Beach
  • StateFL
  • Zip Code33405

Amenities

  • AmenitiesNone
  • # of Garages2
  • WaterfrontNone
  • Has PoolYes
  • PoolIn Ground, Pool Bath

Utilities

Sewer Available, Water Available

Parking

On Street, Garage, Attached Garage

Interior

  • HeatingCentral
  • CoolingCentral Air
  • FireplaceYes
  • # of Stories2
  • StoriesMulti/Split

Interior Features

Pantry, Walk-In Closet(s), Bedroom Layout - Split, Cabana Bath

Exterior

  • Exterior FeaturesPool Bathroom
  • ConstructionFrame, Stucco, CBS

Additional Information

  • Date ListedOctober 9th, 2024
  • Days on Website510
  • ZoningSF14
  • Office: Nest Seekers Florida, Llc

Property Location

Please provide a valid email address.

221 Monroe Drive on www.jupiterabacoahomes.us

Offered at the current list price of $9,800,000, this home for sale at 221 Monroe Drive features 6 bedrooms and 7 bathrooms. This real estate listing is located in SOUTHLAND PARK of West Palm Beach, FL 33405 and is approximately 5,282 square feet. 221 Monroe Drive is listed under the MLS ID of R11027557 and has been available through www.jupiterabacoahomes.us for the West Palm Beach real estate market for 510 days.

Facts About West Palm Beach, FL

West Palm Beach is home to many festivals and events. They are often hosted at Currie Park which is a scenic family friendly park located on West Palm Beache's Intracoastal Waterway.

Raymond F. Kravis Center for the Performing Arts is the culture icon for the West Palm Beach Area. This 2000 plus seat venue hosts a treasure of Dance, Music and Dramatic performances each year.

One of West Palm Beach's favorite venues for a cold drink and some nice South Florida relaxation is E.R. Bradley's Saloon. This open air restaurant is a frequent stop for both locals and tourists.

Similar Listings to 221 Monroe Drive

Photo of Listing #R11104774
  • MLS® #: R11104774
  • 7932 Flagler Court
  • West Palm Beach, FL 33405
  • $9,500,000
  • 2 Bed, 3 Bath, 2,332 SqFt
  • Residential
Add as Favorite
Photo of Listing #R11139532
  • MLS® #: R11139532
  • 50 Rutland Boulevard
  • West Palm Beach, FL 33405
  • $10,500,000
  • 6 Bed, 5 Bath, 4,512 SqFt
  • Residential
Add as Favorite
Photo of Listing #R11063270
  • MLS® #: R11063270
  • 2745 S Flagler Drive
  • West Palm Beach, FL 33405
  • $8,950,000
  • 4 Bed, 6 Bath, 3,001 SqFt
  • Residential
Add as Favorite
Photo of Listing #R11128380
  • MLS® #: R11128380
  • 215 Summa Street
  • West Palm Beach, FL 33405
  • $8,990,000
  • 6 Bed, 9 Bath, 5,893 SqFt
  • Residential
Add as Favorite

All listings featuring the BMLS logo are provided by Beaches MLS Inc. Copyright 2026 Beaches MLS. This information is not verified for authenticity or accuracy and is not guaranteed.
© 2026 Beaches Multiple Listing Service, Inc. All rights reserved.

Listing information last updated on March 3rd, 2026 at 12:17pm CST.