1. Home
  2. Search Listings
  3. 2980 Ne 207th Street Miami, FL - 33180
  • MLS® #: F10556697
  • 2980 Ne 207th Street
  • Miami, FL 33180
  • $1,500,000
  • Commercial Sale

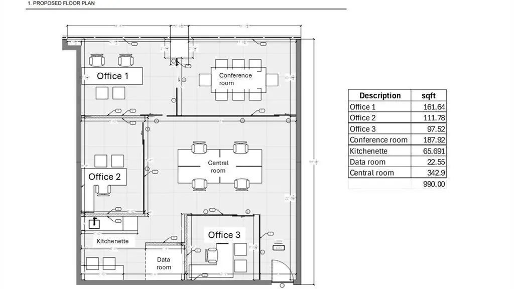
Turnkey luxury office at Aventura Park Square, fully built out and move-in ready. Features 3 private offices, large central workstations for 4, conference room, kitchenette, and storage. Spacious, refined, and tastefully decorated. Designed by Zysovich Architects. Includes 3 covered parking spaces; additional parking available. Enjoy on-site conference room, wellness center, restaurants, Starbucks, and hotel. Prime location just 15 minutes to Miami and Fort Lauderdale airports and walking distance to Aventura Mall. Ideal for professionals seeking a modern, upscale workspace.

Essential Information

  • MLS® #F10556697
  • Price$1,500,000
  • Year Built2018
  • TypeCommercial Sale
  • Sub-TypeOffice
  • StatusActive

Community Information

  • Address2980 Ne 207th Street
  • Area6120 - Stuart - Southwest
  • CityMiami
  • CountyMiami-Dade
  • StateFL
  • Zip Code33180

Amenities

  • ParkingAssigned

Interior

  • HeatingCentral Individual
  • CoolingCentral Individual

Exterior

  • ConstructionBlock

Additional Information

  • Date ListedMarch 7th, 2026
  • Days on Website17
  • Zoning6200
  • HOA Fees1238
  • HOA Fees Freq.Monthly
  • Office: Re Florida Homes

Property Location

Please provide a valid email address.

2980 Ne 207th Street on www.jupiterabacoahomes.us

Offered at the current list price of $1,500,000, this home for sale at 2980 Ne 207th Street features bedrooms and 0 bathrooms. This real estate listing is located in of Miami, FL 33180 . 2980 Ne 207th Street is listed under the MLS ID of F10556697 and has been available through www.jupiterabacoahomes.us for the Miami real estate market for 17 days.

Facts About Miami, FL

Each winter during Carnaval Miami, salsa tunes blare and the smell of spicy chorizo fills the air on Calle Ocho, the commercial thoroughfare and heart of Miami's Little Havana. The roaring street festival, which culminates in the world's longest conga line, is the last of 10 events comprising the Latin-spiked Carnaval.

All listings featuring the BMLS logo are provided by Beaches MLS Inc. Copyright 2026 Beaches MLS. This information is not verified for authenticity or accuracy and is not guaranteed.
© 2026 Beaches Multiple Listing Service, Inc. All rights reserved.

Listing information last updated on March 29th, 2026 at 11:45pm CDT.