1. Home
  2. Search Listings
  3. 913 Sw South Globe Avenue Port St. Lucie, FL - 34953
  • MLS® #: F10543419
  • 913 Sw South Globe Avenue
  • Port St. Lucie, FL 34953
  • $750,000
  • 1.17 Acres
  • Land & Docks

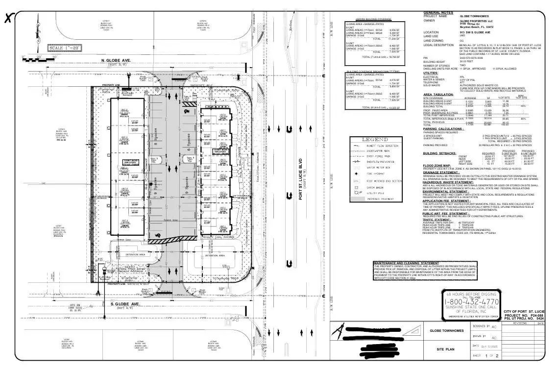
Prime Development Opportunity in Desirable Location Location: Secure this 1.17-acre parcel in a highly soughtafter, prime location. Ready-to-Build: The property features site plans already approved for 13 units,streamlining your development timeline and significantly reducing typical entitlement risks. Flexible Zoning:Benefit from flexible LMD (Limited Mixed-Use Development) zoning, which provides numerous options to buildvarious multifamily residences or diverse business types. This versatile zoning unlocks a wide range ofinvestment possibilities. Investment Potential: This rare, de-risked opportunity is ideal for developers orinvestors looking for a project with established approvals in a strong market.

Essential Information

  • MLS® #F10543419
  • Price$750,000
  • Acres1.17
  • TypeLand & Docks
  • Sub-TypeUnimproved Land
  • StatusPending

Community Information

  • Address913 Sw South Globe Avenue
  • Area7740
  • SubdivisionPort St Lucie Sec 15
  • CityPort St. Lucie
  • CountySt. Lucie
  • StateFL
  • Zip Code34953

Exterior

  • Lot DescriptionOther

Additional Information

  • Date ListedJanuary 4th, 2026
  • Days on Website79
  • ZoningLIMITED MI
  • Office: Agent Plus Realty

Property Location

Please provide a valid email address.

913 Sw South Globe Avenue on www.jupiterabacoahomes.us

Offered at the current list price of $750,000, this home for sale at 913 Sw South Globe Avenue features bedrooms and 0 bathrooms. This real estate listing is located in Port St Lucie Sec 15 of Port St. Lucie, FL 34953 . 913 Sw South Globe Avenue is listed under the MLS ID of F10543419 and has been available through www.jupiterabacoahomes.us for the Port St. Lucie real estate market for 79 days.

Similar Listings to 913 Sw South Globe Avenue

Photo of Listing #R11131150
  • MLS® #: R11131150
  • 3832 Sw Janiga Street
  • Port St. Lucie, FL 34953
  • $849,000
  • 4.79 Acres
  • Land & Docks
Add as Favorite
Photo of Listing #R11134686
  • MLS® #: R11134686
  • 0 S Indian River Drive
  • Port St. Lucie, FL 34957
  • $850,000
  • 5.71 Acres
  • Land & Docks
Add as Favorite
Photo of Listing #R11157767
  • MLS® #: R11157767
  • 2520 Se Melaleuca Boulevard
  • Port St. Lucie, FL 34952
  • $650,000
  • 4.6 Acres
  • Land & Docks
Add as Favorite
Photo of Listing #R11153700
  • MLS® #: R11153700
  • 17801 Wagonwheel Lane
  • Port St. Lucie, FL 34987
  • $697,000
  • 5.14 Acres
  • Land & Docks
Add as Favorite

All listings featuring the BMLS logo are provided by Beaches MLS Inc. Copyright 2026 Beaches MLS. This information is not verified for authenticity or accuracy and is not guaranteed.
© 2026 Beaches Multiple Listing Service, Inc. All rights reserved.

Listing information last updated on March 27th, 2026 at 9:46pm CDT.