1. Home
  2. Search Listings
  3. 2450 Hollywood Boulevard #cu700 & 701 Hollywood, FL - 33020
  • MLS® #: F10488401
  • 2450 Hollywood Boulevard #cu700 & 701
  • Hollywood, FL 33020
  • $1,150,000
  • Commercial Sale

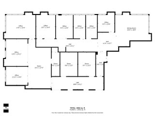
Incredible opportunity to purchase two adjoining commercial spaces in the heart of Hollywood. Unit 700 is 930 sf and Unit 701 is 1350 sf for a total of 2,280 sf. The units can be easily combined. Both are corner units with lots of windows, lots of natural light and amazing 180 degree views from the penthouse level. The suites are currently built out with a total of 7 offices, two reception areas, a large bullpen/open area and storage room. The property comes with 4 assigned parking spaces and ample open and guest parking. The building has a beautiful-remodeled lobby with receptionist.

Essential Information

  • MLS® #F10488401
  • Price$1,150,000
  • Year Built1975
  • TypeCommercial Sale
  • Sub-TypeBusiness
  • StatusActive

Community Information

  • Area3050
  • CityHollywood
  • CountyBroward
  • StateFL
  • Zip Code33020

Address

2450 Hollywood Boulevard #cu700 & 701

Amenities

  • ParkingCommon, Guest

Interior

  • HeatingCentral Individual
  • CoolingCentral Individual

Exterior

  • ConstructionCBS

Additional Information

  • Date ListedFebruary 21st, 2025
  • Days on Website375
  • HOA Fees2385
  • HOA Fees Freq.Monthly
  • Office: Compass Florida, Llc

Property Location

Please provide a valid email address.

2450 Hollywood Boulevard #cu700 & 701 on www.jupiterabacoahomes.us

Offered at the current list price of $1,150,000, this home for sale at 2450 Hollywood Boulevard #cu700 & 701 features bedrooms and 0 bathrooms. This real estate listing is located in of Hollywood, FL 33020 . 2450 Hollywood Boulevard #cu700 & 701 is listed under the MLS ID of F10488401 and has been available through www.jupiterabacoahomes.us for the Hollywood real estate market for 375 days.

Similar Listings to 2450 Hollywood Boulevard #cu700 & 701

Photo of Listing #F10529004
  • MLS® #: F10529004
  • 4331 W Hallandale Beach Boulevard
  • Hollywood, FL 33023
  • $995,000
  • 0.19 Acres
  • Commercial Sale
Add as Favorite

All listings featuring the BMLS logo are provided by Beaches MLS Inc. Copyright 2026 Beaches MLS. This information is not verified for authenticity or accuracy and is not guaranteed.
© 2026 Beaches Multiple Listing Service, Inc. All rights reserved.

Listing information last updated on March 3rd, 2026 at 4:44am CST.