1. Home
  2. Search Listings
  3. 1091 W Main Street Avon Park, FL - 33825
  • MLS® #: F10479758
  • 1091 W Main Street
  • Avon Park, FL 33825
  • $7,513
  • 2.10 Acres
  • Commercial Lease

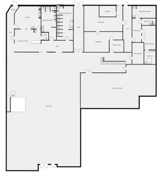
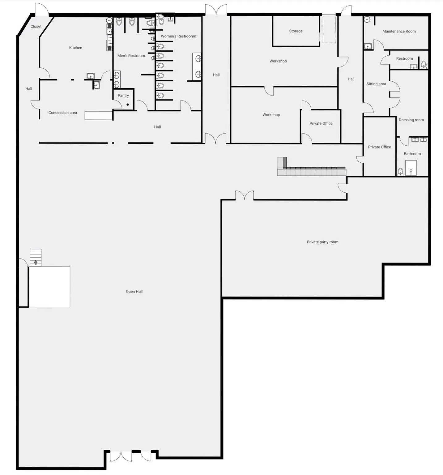
Prime Commercial Space for Lease: Discover an incredible opportunity to elevate your business in this expansive 12,880 sq ft commercial space, conveniently located in the highly visible Avon Plaza on W Main, just a block from US 27. This versatile property is zoned C2 and offers endless potential for various business ventures. This high traffic area has excellent exposure and an impressive annual average daily traffic count of 13,200. The spacious interior can be tailored to suit your specific business needs, whether retail, office, entertainment, or service-based.Affordable Lease Terms: Priced at just $7/sq ft, plus applicable sales tax and utilities, this space offers exceptional value.

Essential Information

  • MLS® #F10479758
  • Price$7,513
  • Acres2.10
  • TypeCommercial Lease
  • Sub-TypeBusiness
  • StatusActive

Community Information

  • Address1091 W Main Street
  • Area5940 - Other Florida County
  • CityAvon Park
  • CountyHighlands
  • StateFL
  • Zip Code33825

Amenities

  • ParkingCommon

Interior

  • HeatingCentral Individual
  • CoolingCentral Individual

Additional Information

  • Date ListedJanuary 9th, 2025
  • Days on Website436
  • Office: Advantage Realty #1

Property Location

Please provide a valid email address.

1091 W Main Street on www.jupiterabacoahomes.us

Offered at the current list price of $7,513, this home for sale at 1091 W Main Street features bedrooms and 0 bathrooms. This real estate listing is located in of Avon Park, FL 33825 . 1091 W Main Street is listed under the MLS ID of F10479758 and has been available through www.jupiterabacoahomes.us for the Avon Park real estate market for 436 days.

All listings featuring the BMLS logo are provided by Beaches MLS Inc. Copyright 2026 Beaches MLS. This information is not verified for authenticity or accuracy and is not guaranteed.
© 2026 Beaches Multiple Listing Service, Inc. All rights reserved.

Listing information last updated on March 21st, 2026 at 5:03pm CDT.