1. Home
  2. Search Listings
  3. 20125 Ne 16th Place #20125 Miami, FL - 33179
  • MLS® #: F10454931
  • 20125 Ne 16th Place #20125
  • Miami, FL 33179
  • $3,100
  • Commercial Lease

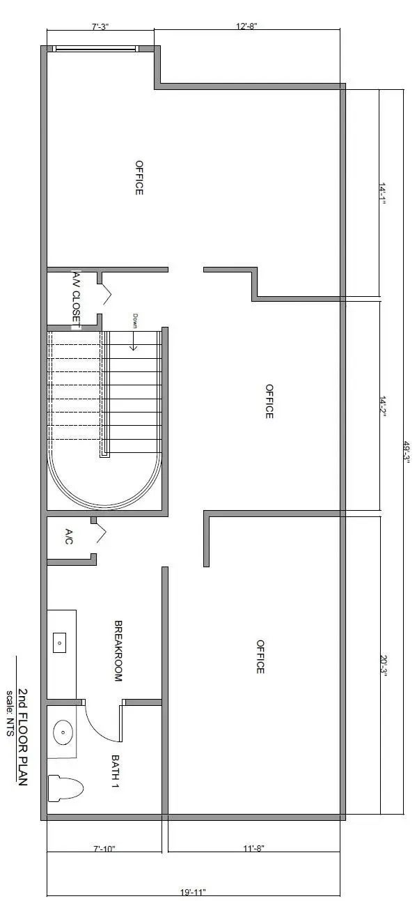
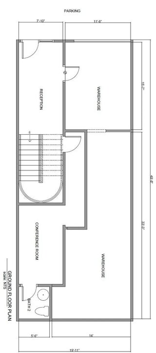
Warehouse and flex office space available for lease inside the Ives Dairy Commerce Center. Centrally located off of the Ives Dairy Road exit to I95. One road to Aventura proper. Please look at floor plan of the 2 stories in the pictures. Currently configured with 3 offices/1 restroom and kitchette upstairs and one office/restroom down stairs. 24 hour gated security on premises. Applicable local and state sales tax shall be assessed on the rent. Lease term 4 to 6 years.

Essential Information

  • MLS® #F10454931
  • Price$3,100
  • TypeCommercial Lease
  • Sub-TypeBusiness
  • StatusActive

Community Information

  • Address20125 Ne 16th Place #20125
  • Area2120
  • CityMiami
  • CountyMiami-Dade
  • StateFL
  • Zip Code33179

Additional Information

  • Date ListedAugust 6th, 2024
  • Days on Website595
  • Zoning7300
  • Office: L'hermitage Realty

Property Location

Please provide a valid email address.

20125 Ne 16th Place #20125 on www.jupiterabacoahomes.us

Offered at the current list price of $3,100, this home for sale at 20125 Ne 16th Place #20125 features bedrooms and 0 bathrooms. This real estate listing is located in of Miami, FL 33179 . 20125 Ne 16th Place #20125 is listed under the MLS ID of F10454931 and has been available through www.jupiterabacoahomes.us for the Miami real estate market for 595 days.

Facts About Miami, FL

Each winter during Carnaval Miami, salsa tunes blare and the smell of spicy chorizo fills the air on Calle Ocho, the commercial thoroughfare and heart of Miami's Little Havana. The roaring street festival, which culminates in the world's longest conga line, is the last of 10 events comprising the Latin-spiked Carnaval.

All listings featuring the BMLS logo are provided by Beaches MLS Inc. Copyright 2026 Beaches MLS. This information is not verified for authenticity or accuracy and is not guaranteed.
© 2026 Beaches Multiple Listing Service, Inc. All rights reserved.

Listing information last updated on March 30th, 2026 at 9:47pm CDT.